Stirling Prize 2010 získalo MAXII od Zahy Hadid

Zdroj
RIBA
Vložil
Petr Šmídek
05.10.2010 10:00
Zaha M. Hadid

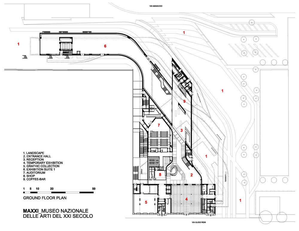
Patnáctá Stirlingova cena, kterou letos udělil Královský institut britských architektů (RIBA) ve spolupráci s Architects' Journal, získalo MAXXI muzeum umění 21. století v Římě od Zahy Hadid. Předání prestižní britské ceny, jejíž součástí je i šek na 20000 liber, proběhlo v sobotu 2. října 2010 v Londýně.

Před dvěma lety se dostal jeden z projektů Zahy Hadid (lanovka v Innsbrucku) mezi šestici staveb nominovaných na Stirlingovu cenu. V minulém roce Hadid získala japonskou Praemium Imperiale a zároveň byla časopisem Time zařazena mezi sto nejvlivnějších osob na světě. Zisk nejprestižnější architektonické ceny ve Velké Bitánii pasoval Hadid na neoficiální „Queen of Architekcture“.

Mezi dalšími pěti stavbami Ashmolean Museum v Oxfordu od Rick Mather, Bateman's Row v Londýně od Theis and Khan, Univerzita Christ's v Guildford od DSDHA, základní škola panství Clapham v Londýně od dRMM a Neues Museum v Berlíně od Davida Chipperfielda.
Na římském MAXXI muzeum umění 21. století se kromě Hadid podílel také Patrik Schumacher, architektka Gianluca Racana a italští inženýři ze Studio Croci 7 Associati.

Stirlingovu cenu uděluje Královský institut britských architektů (RIBA) od roku 1996 a dotuje ji 20000 liber. Richard Rogers, loňský držitel Stirlingovy ceny za Maggie's Centre v Londýně, musel v důsledku ekonomické krize finanční dotaci oželet. Zaha Hadid byla na Stirlingovu cenu nominována již celkem třikrát.

Více informací >
0 komentářů
přidat komentář

Související články