New exhibitions of the CzechTourism agency - competition results

Creation of a new technical and graphic concept for the exhibition display for the years 2015-2017

Source
Česká komora architektů
Publisher
Tisková zpráva
10.02.2014 21:20
Bronislav Stratil
Pavel Rada

Public Procurement of Small Scale
The subject of the public procurement was the creation of a new technical and graphic concept for the exhibition in the years 2015-2017, which will include the creation of a relevant proposal for a new exhibition by the agency CzechTourism, the development of this proposal into the form of project documentation (manual), and also providing assistance in subsequent modifications of this exhibition proposal in accordance with the needs of the client.
Organizer: Czech Tourist Authority – CzechTourism
Contact person: Lucie Prausová
Jury: Radim Hubiča, Libor Patoča, Václav Stárek, Rostislav Vondruška, Jana Magdová; substitutes: Jiří Puchinger, Viktor Zvelebil, Klára Zachariášová, Andrea Gregorová, Marek Mráz
Competition period: October 22 - November 29, 2013
Number of submitted proposals: 6
Total prizes and awards: CZK 30,000



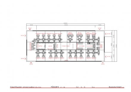
1st prize (15,000 CZK): Roháč-Stratil s.r.o. - author Roháč Stratil architectural studio, MgA. Bronislav Stratil

Criterion A - Price
848,000 CZK

Criterion B – Overall image of the exhibition
The overall image of the exhibition by the architectural studio Roháč Stratil is evaluated by the jury as the best among the submitted offers in terms of both visual and conceptual approach. The applicant helped the committee understand his idea and gain a better understanding of his proposal with an insightful description of the perception of the exhibition and the introduction of individual elements. The exhibition appears very clean and elegant with great use of space. The applicant met all the requirements set by the client at a high level. The committee highly appreciates the stylization of the exhibition into the Land of Stories in line with the client's marketing strategy, including the stylistic nomenclature and descriptions of individual elements in the exhibition. This concept offers the client significant maximum usage of the agency's graphic visuals including video spots. The concept of the exhibition is very unconventional, original, and even timeless. The exhibition is brightly lit and marked with logos from all sides so that visitors cannot miss it. This signage is also emphasized by the audiovisual elements proposed by the applicant, and there are also light effects. The committee highly values the unconventional approach of individual elements of the exhibition in terms of shape and multifunctional use. The background of the exhibition is very elegantly designed, divided into necessary sections, including the possibility of hidden catering and the placement of internet stations. According to the visualization of the exhibition, the conceptual arrangement of individual exhibition elements is ideally resolved even in terms of practical use. It also includes a description of the accompanying program with a stylish demonstration and design of the place, including space for destination presentations within the exhibition. The applicant proposed a very imaginative and practically usable standalone informative-educational element in the exhibition that incorporates a map of the Czech Republic. Additionally, the exhibition also features another attraction for fair visitors, namely the so-called magic crystal presenting visual fragments of typical attributes of the Czech Republic; the jury evaluates these modern innovative elements very positively.

Criterion C - Processing of the exhibition space of the CzechTourism agency and exhibitors
The processing of the exhibition space of the CzechTourism agency and exhibitors by the architectural studio Roháč Stratil was evaluated by the committee as the best of the submitted offers. The applicant proposed an atypical and interesting design solution for exhibition counters, which is very practical in terms of service and movement around. The exhibition counters, along with storage space for materials, are described in such a way that the committee has a clear idea of their functionality, including the purpose of illuminating the counters. It effectively describes the types of exhibition counters at various fairs according to the focus of B2B or B2C, including all the furniture of the exhibition, which very elegantly and tastefully fits into the overall visual concept of the exhibition. The committee also appreciates the design and use of space for the names of exhibitors, resolved through multimedia presentation frames, which also fits into the overall modern concept of the exhibition. Moreover, the exhibitor has the opportunity to choose the form in which they want to present themselves to visitors and with what information to approach them.

Criterion D - Overall graphic design of the exhibition
The overall graphic design of the exhibition by the architectural studio Roháč Stratil was evaluated by the committee as the best among the submitted offers. The committee highly values the design of exhibition elements with regard to graphic concept, which largely allows the client to utilize all spaces for presenting their graphic visuals of the Land of Stories. The placement of the graphics on backlit or illuminated large surfaces ensures clarity and visibility for fair visitors. The committee positively evaluates the variable placement of TV projections, including alternative designs for projections within the exhibition. The map of the Czech Republic has been attractively designed with easy access for visitors, while also connected with interaction.




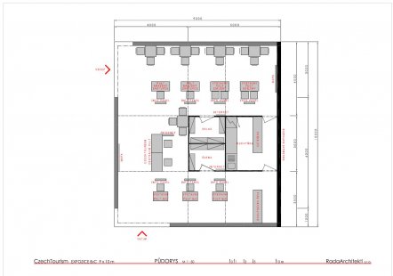
2nd prize (10,000 CZK): Rada Architekti s.r.o. - author Ing.arch. Pavel Rada

Criterion A - Price
900,000 CZK

Criterion B – Overall image of the exhibition
The overall image of the exhibition of the applicant Rada Architekti s.r.o. is evaluated by the committee as the second best among the submitted offers regarding visual and conceptual approach. The exhibition is very elegant and conceptually very interesting, similar to the first-place applicant, it is atypical. The introductory part of the offer includes a description of the idea of perceiving the exhibition and the presentation of individual elements, including structural solutions and the use of materials, such a detailed description is highly appreciated by the committee. The committee positively assesses the idea of the enclosure of the exhibition using a lath structure, with the desire of fair visitors to explore and discover the internal part of the exhibition representing the beauties of the Czech Republic, but it also fears that this closed shell might deter visitors from entering in B2C-type fairs because they might feel shy or even afraid of the unknown. Additionally, this enclosed space could feel claustrophobic for some exhibiting entities or create a sense of disconnection from the fair activities. The committee agreed that this type of exhibition would be an ideal format for B2B fairs based on negotiations. The committee highly appreciates the stylization of the exhibition into visuals in accordance with the marketing strategy of the client, however, the first-place applicant captured the trends in exhibition more aptly, specifically the use of large-format backlit photographs, which the client himself prefers. The marking of the Czech Republic on a slatted background, along with relevant slogans, is very imaginative and clear for fair visitors. The committee highly values the imaginative design of the area for accompanying programs, including its verbal expression. Other necessary elements such as a map of the Czech Republic, TV projections, and destination presentations are located in suitable places within the proposal, as well as a typically Czech element, which is designed as a lit showcase where, as the committee assumes, typically Czech products will be placed.

Criterion C - Processing of the exhibition space of the CzechTourism agency and exhibitors
The processing of the exhibition space of the CzechTourism agency and exhibitors by the applicant Rada Architekti s.r.o. was evaluated by the committee as the second best among the submitted offers. Compared to the first-place applicant, the applicant proposed a larger space for the graphics of individual exhibitors, but at the cost of free space around, as the exhibitor from the position of the negotiation table has no possibility to map visitors coming to the counter through the information panel and thus approach them actively. The applicant also described the types of exhibition counters at various fairs according to the focus of B2B or B2C, from the proposals it is clear how the furniture of the exhibition fits into the overall visual concept of the proposed exhibition.

Criterion D - Overall graphic design of the exhibition
The overall graphic design of the exhibition by the applicant Rada Architekti s.r.o. was evaluated by the committee as the second best among the submitted offers. The committee highly appreciates the graphic approach of the exhibition in line with the marketing campaign of the Land of Stories, which is variable to changes in visuals. However, in the opinion of the committee, the first-place applicant better captured the trend of marketing and exhibition in relation to the use of large-format backlit photographs. The committee positively evaluates the placement of TV projections and the map of the Czech Republic, which are always freely accessible and within reach of visitors so as not to disrupt the negotiation spaces of the exhibitors.




3rd prize (5,000 CZK): Artěl, spol. s.r.o.

Criterion A - Price
980,000 CZK

Criterion B – Overall image of the exhibition
The overall image of the exhibition of the applicant Artěl is evaluated by the committee as the third best among the submitted offers regarding visual and conceptual approach. The stand feels airy with clean and elegant graphics, striking with the contrast between the very light structure and furniture and the colorful large-scale backlit photographs. In the introductory part of the offer, the applicant briefly describes the concept of the exhibition, construction, lighting solution, including furniture, but in comparison to the first and second-place applicants, the committee finds no description of the philosophy of the exhibition here. The committee highly appreciates the stylization of the exhibition into visuals in accordance with the marketing strategy of the client; similar to the first-place applicant, this concept offers the client a significant maximization of the use of the agency’s graphic visuals, including video spots, which is very important for the client in the context of modern trends. The marking of the Czech Republic on a tall panel is unmistakable for visitors. The committee appreciates the atypical design of some elements of the exhibition. Other necessary elements such as a map of the Czech Republic, TV projections, and destination presentations are appropriately placed within the proposal where visitors can access them, as well as a typically Czech element, where two different variants of a typical Czech corner are proposed in both traditional and modern style. The committee likes the applicant's proposal, however, the offer is not as comprehensively developed in comparison to the first and second-place applicants in terms of coherence and individual elements of the exhibition.

Criterion C - Processing of the exhibition space of the CzechTourism agency and exhibitors
The processing of the exhibition space of the CzechTourism agency and exhibitors by the applicant Artěl was evaluated by the committee as the third best among the submitted offers. The placement of exhibition counters is suitably allocated within the exhibition; individual exhibitors have privacy at the counters while being accessible to fair visitors, but the committee finds insufficient marking of individual exhibition counters compared to the first and second-place applicants. The proposal by the applicant is primarily intended for B2B fairs. From the proposals, all the furniture of the exhibition fits into the overall visual concept of the proposed exhibition. The committee likes the applicant's proposal for the exhibition counters, however, the offer is not detailed in all aspects compared to the first and second-place applicants.

Criterion D - Overall graphic design of the exhibition
The overall graphic design of the exhibition by the applicant Artěl was evaluated by the committee as the third best among the submitted offers. The committee appreciates the proposal of exhibition elements with regard to graphic concept, which allows the client to utilize all spaces for presenting their graphic visuals of the Land of Stories, however, given the placement of graphics at every exhibition sector on both sides, larger exhibitions with several dozen exhibitors may become unclear and fragmented, according to committee opinion. The graphic design in this concept is suitable for smaller or medium-sized fairs, although it aligns with trends in exhibition design and is very interesting.


More information >
The English translation is powered by AI tool. Switch to Czech to view the original text source.
0 comments
add comment