Traffic terminal Nové Město na Moravě

Traffic terminal Nové Město na Moravě
Address: ul. Nádražní, Nové Město na Moravě, Czech Republic
Investor:Nové Město na Moravě
Project:2009–2011
Completion:2011–2012
Built Up Area:439 m2
Site Area:12000 m2


Cooperation: Tomáš Pavlíček; Filip Balcar (construction and technical solution); Dušan Fialka / FEVIA (steel structures statics); Jitka Špondrová (fire safety solution); Milan Zezula (transportation); Jan Vrba (water supply, sewage); ELQA (outdoor low voltage distribution, street lighting, weak current)
Supplier: JCZ, s. r. o.
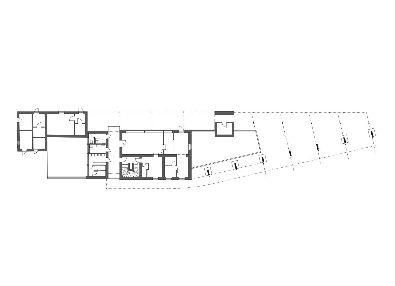
New Town na Moravě is an important regional center of the Bohemian-Moravian Highlands, and the growth of its tourist significance is closely related to the need for improving public amenities and the services provided. The new transport terminal brings together rail and bus transport into one location – at the existing train station in the northeastern part of the city – and becomes a dignified modern "gateway to the city."
The original station building from the early 20th century has been cleared of all non-original extensions and has been completely restored and modernized to create a dignified operational background for passengers as well as for the needs of Czech Railways, meeting current demands in terms of quality and travel comfort. New canopy structures have been constructed over the platforms using lightweight steel construction, and the organization of transport in the forecourt area has been improved, where 5 bus stops (3 covered), 4 parking spots for buses, and a P+R parking area have been established.
The terminal is part of a broader transportation concept for the city and is expected to be one of three hubs in the overall system in the future.
The English translation is powered by AI tool. Switch to Czech to view the original text source.
0 comments
add comment

more buildings from knesl kynčl architekti