Základní škola Bratří Fričů v Ondřejově

Základní škola Bratří Fričů v Ondřejově
Spoluautor:MgA. Pavla Gregorová Šípová, výtvarné řešení barevnosti podlah
Design tým: Ing. Miroslav Zyma, Ing. Libor Truhelka, Ing. Petr Skala
Adresa: Pod Hřištěm 490, Ondřejov, Česká republika
Investor:Dobrovolný svazek obcí Svazková škola Ondřejov
Projekt:2017
Realizace:2024
Užitná plocha:9559 m2
Zastavěná plocha:3012 m2
Plocha pozemku:8208 m2
Náklady:465 500 000 CZK


Stavební řešení: Energy Benefit Centre
Grafický design: HMS Design | Filip Heyduk, Jakub Heyduk
Generální dodavatel stavby: PKS stavby + ABP HOLDING – ZŠ Ondřejov
Dodavatel interiérového vybavení stavby: MY DVA holding
Dodavatel podlahových krytin: MOUCAL podlahoviny

CZECH INTERIOR AWARD 2025 v kategorii veřejný interiér – pracovní a vzdělávací prostory
Finalista v kategorii Veřejný interiér II. v soutěži Interiér roku 2024
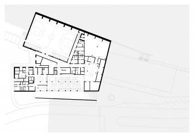
Základní škola bratří Fričů je svazková škola třech obcí pro 540 žáků, která vznikla na svažité louce v Ondřejově u fotbalového hřiště. Aby škola nepůsobila v obci plné rodinných domů a zahrádek mohutným dojmem, je stavba rozčleněna do tří hlavních hmot propojených nízkým vstupním foyer. Fasády jsou obloženy cihelnými pásky, které přispívají ke zjemnění měřítka. Signifikantní je také zelená barva na oknech a oplocení, která stejně jako režné zdivo odkazuje na estetiku ondřejovské hvězdárny.

Naším základním cílem bylo dosáhnout přehledných dispozic a prosvětlených prostor. To byla výzva zejména u chodeb, které se nacházejí uvnitř dispozice. Proto jsme navrhli světlíky orientované na sever, které přivádějí denní světlo, umožňují provětrání budovy a jejich jižní šikmina nese fotovoltaické panely.

Budova je postavena v pasivním standardu, je energeticky velmi úsporná. Vytápění je řešeno tepelnými čerpadly na principu země-voda, napojenými na dvacet hlubokých vrtů za školou. Větrání zajišťují moderní vzduchotechnické jednotky s rekuperací – ale okna ve třídách lze kdykoliv otevřít.

Chtěli jsme, aby škola fungovala trochu jako učebnice. Proto jsme na chodbách nezakrývali rozvodná potrubí ani primární konstrukční materiál, tedy železobeton. I děti tak mohou vnímat vše, co budova k životu potřebuje. V celé škole klademe velký důraz na akustickou pohodu – nejen v učebnách, ale i na chodbách a v jídelně. Použili jsme zavěšené kruhové akustické prvky, které pohlcují hluk z obou stran a odkazují na hvězdnou oblohu. Dřevěný obklad v jídelně navíc navozuje příjemnou atmosféru.

Strohost komunikačních prostor jsme od počátku plánovali doplnit výraznou barevností podlah z přírodního linolea. Na barevném řešení jsme spolupracovali s výtvarnicí Pavlou Gregorovou Šípovou. Inspirovali jsme se opět hvězdárnou a také komunikací – pozemní i mezilidskou. V místnostech, které jsou určené k občerstvení, relaxaci a rozhovorům, tedy v jídelně a školním klubu, jsou použity "komiksové bubliny". Vstupní foyer zdobí stylizovaná hvězda, jejíž paprsky navádí všemi směry, kterými je možné se vydat, procházejí až do tříd, kde se "rozpijí" po celé místnosti. Pro první stupeň jsme zvolili jásavější barvy, pro druhý tlumenější, v kabinetech a sborovnách převažují neutrální tóny s uklidňující zelenou.

Nábytek jsme navrhli v neutrální bílé nebo dekoru dřeva, aby si nekonkuroval s podlahami. Barevnost se objevuje na typech sezení nebo úložných boxech. V tělocvičně dominují dřevěné prvky, pohledový beton a šedá podlaha s barevnými čárami pro různé sporty.

Během realizace jsme si jako architekti znovu ověřili, jak důležitá je spolupráce s výtvarnými umělci a designéry – přináší čerstvé myšlenky a zkušenosti do prostředí, které společně vytváříme pro další generace.
0 komentářů
přidat komentář

Více staveb od Atelier 6, s.r.o.