Novostavba rodinného domu v Šestajovicích

Novostavba rodinného domu v Šestajovicích
Adresa: Fialková 1600, Šestajovice, Česká republika
Projekt:2017
Realizace:2018
Užitná plocha:141 m2
Zastavěná plocha:210 m2
Náklady:5 000 000 CZK


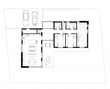
Pozemek rodinného domu se nachází ve východní části obce Šestajovice v lokalitě V Lukách. Jedná se o nově rozparcelovanou louku na velmi mírném východním svahu. Přístup i příjezd je veden ze severní strany z nové komunikace zbudované v rámci zasíťování lokality. Stavba je na pozemku umístěna tak, aby vytvořila vnější privátní pobytové prostory s jižním osluněním. Objekt se skládá ze dvou částí. Západní je věnována denní zóně, zatímco ve východní je umístěna zóna klidová. Mezi nimi je umístěn vstup do objektu s prostornou halou. Hmota objektu byla tvarována tak, aby stavba poskytovala ve svém interiéru dostatek osvětlení, oslunění a pocitu soukromí. Rovnocenně bylo přistupováno ke vnějším pobytovým prostorům. Provoz domu je tak doplněn o krytou terasu navazující na vstupní halu, otevřenou terasu před obývacím prostorem a kryté zápraží před ložnicemi.

soukromí
Celkovou modelaci ovlivnila souběžně vznikající výstavba domů v okolí, která výrazně snižovala pocit soukromí na předmětném pozemku. Klasická dvojpodlažní koncepce byla proto nahrazena přízemním konceptem s půdorysem domu ve tvaru písmene L s vnější clonící zídkou. Intimitu vnějších prostor dále podporují přesahující části domu, které se uplatňují jak v zahradní části domu, tak i při vstupu do objektu. Poslední součástí ochrany soukromí byly zahradní úpravy, které vnikaly postupně v rámci sžívání se s domem a jeho okolím.

provoz
Z přilehlé veřejné komunikace je možné vjet přímo do parkovacího zálivu. Plocha je částečně kryta před nepřízní počasí a umožňuje vstup do příručního skladu a proskleného zádveří domu. To navazuje na centrální halu s optickým průhledem skrz krytou terasu do zahradní části domu. Hala umožňuje vsup do denní části domu reprezentované obývacím prostorem nebo noční zóny s jednotlivými ložnicemi. Obývací prostor je provozně členěn na tři úseky. Při vstupu je umístěna velkoprostorová kuchyně s barovým pultem, ve střední části se nachází jídelna s osvětlením z východní i západní strany a na jižním konci se rozkládá sezení, které je z jihu osluněno oknem s parapetem, zatímco z východní strany je otevřeno francouzským oknem do zahrady. V tomto směru se také nachází otevřená vnější pobytová terasa. Východně na centrální halu navazuje ložnicová chodba. Propojuje ložnici, dva dětské pokoje, šatnu, toaletu a koupelnu. Pobytové místnosti jsou umístěny při jižní fasádě s dostatkem slunečního svitu a s výhledem do zahrady. Proto jsou v tomto směru použita velkoformátová francouzská okna s přesahem střechy proti letnímu přehřívání. Pomocné prostory jsou osvětleny převážně od severu rozptýleným světlem. V tomto směru jsou proto osazena okna s parapetem.

konstrukční a materiálové řešení
Základová konstrukce objektu je provedena jako betonová monolitická deska na pasech s příslušnými izolacemi. Svislé nosné i nenosné konstrukce jsou keramické. Stropní a zároveň střešní nosná konstrukce je plochá železobetonová monolitická deska se spádovými izolačními vrstvami. Konstrukce podlah je betonová s nášlapnou dřevěnou vrstvou v pobytových místnostech a keramickou v servisních prostorách. Vnitřní omítky jsou hladké štukové s bílým nátěrem. Obklady stěn na sociálních zařízeních jsou keramické do výšky dveřních otvorů. Výplně otvorů jsou ve hliníkových rámech s antracitovým nástřikem včetně předokenních žaluzií. Hlavní hmota domu je opatřena hladkou štukovou omítkou ve světle šedém tónu, meziokenní zdivo je kryto tmavým kamenným obkladem.
0 komentářů
přidat komentář

Více staveb od OBRŠÁL ARCHITEKTI s.r.o.