Dům sociální péče Tereza

Domov asistovaného bydlení pro 21. století

Dům sociální péče Tereza
Adresa: Na Vinici, Semily, Česká republika
Investor:Liberecký kraj
Projekt:2021
Realizace:2026
Užitná plocha:1160 m2
Zastavěná plocha:784 m2
Plocha pozemku:2524 m2
Obestavěný prostor:5350 m3
Náklady:99 200 000 CZK


Projektant: SIAL architekti a inženýři, František Bielik
Krajinářský architekt: Terra Florida, Markéta Mádrová
V kopcovitém terénu okrajové části Semil jsme do prostředí solitérní zástavby rodinných domů navrhli dvoupodlažní objekt asistovaného bydlení pro zdravotně znevýhodněné klienty a klientky domova sociální péče. Pozemek určený pro novostavbu se nachází v jihovýchodní části Semil. Jižní svah umožňuje otevření objektu do malebných panoramat s výhledem na protější zalesněný hřbet. Vstup do objektu je v horním podlaží na severní straně parcely na úrovni přilehlé veřejné komunikace. Zasazení spodního patra do terénu napomáhá tomu, že při pohledu z přístupové komunikace se dům jeví jako jednopodlažní.

Slunnost parcely, přítomnost vzrostlé zeleně a celkový klidný kontext lokality vytvářejí vhodné podmínky pro začlenění objektu do stávající struktury. S respektem k měřítku okolní zástavby a přirozenému tvaru terénu jsme navrhli pokornou solitérní stavbu, která doplňuje celkový urbanistický obraz místa.

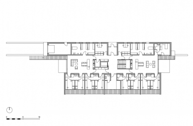
Dům umožňuje chráněné bydlení pro 18 osob. Každá ze čtyř domácností má podobnou dispozici, jejímž středem je obytný prostor s kuchyňským a jídelním koutem, ze kterého je přístup do čtyř jednolůžkových pokojů (s možností rozšíření na dvoulůžkové) a do technických místností. Vždy dva pokoje sdílejí společné hygienické zařízení. Na každém podlaží je také jedna garsoniéra pro odlehčovací pobytovou službu.

Provoz objektu je rozdělen podélně do tří funkčních zón. Severní část tvoří provozně-technické zázemí, střední zóna zahrnuje společné pobytové prostory a jižní je určena pokojům s lodžiemi orientovanými na jih.

V blízkosti hlavního vstupu je situován výtah do spodního podlaží, který zajišťuje plnou bezbariérovost objektu, a dále také společné administrativní a technické prostory.

Všechna parkovací stání jsou rovněž bezbariérová. Komunikace vně i uvnitř objektu splňují požadavky na minimální šířky i sklony, přechody a chodníky jsou řešeny tak, aby nepředstavovaly překážku pro osoby s omezenou schopností pohybu či orientace. Vstupy, horizontální i vertikální propojení objektu zajišťují přístupnost všech prostor domu. Každá ubytovací jednotka je navržena tak, aby byla využitelná osobami se zdravotním omezením. Pracovní prostory personálu i prostory pro návštěvy jsou koncipovány tak, aby byly bez omezení přístupné všem uživatelům.

Stavební řešení objektu odpovídá jeho hmotové i provozní koncepci. Konstrukční systém je založen na nosných cihelných a železobetonových stěnách. Horizontální konstrukce tvoří obousměrně pnuté železobetonové desky doplněné lemovacími trámky. Založení objektu vychází z výsledků geologického průzkumu a je provedeno na základových pasech. Terénní úpravy vyžadují realizaci úhlových opěrných stěn sahajících do výšky jednoho podlaží. Obvodový plášť kombinuje minerální izolaci, cihelné lícové pásky a hliníkové výplně otvorů, čímž je dosaženo požadovaných tepelně-technických, akustických i požárních parametrů. Vnitřní konstrukce tvoří kombinace cihelných a sádrokartonových příček, přičemž mezi jednotlivými ubytovacími jednotkami jsou užity akustické cihelné bloky.

Zahrada doplňuje celkovou koncepci objektu a rozšiřuje jeho pobytové možnosti o kvalitní venkovní prostor, který podporuje společenské i klidové aktivity obyvatel. Terénní a vegetační úpravy navazují na přirozený charakter svahu a využívají stávajících kvalit místa. Travnatá plocha v blízkosti domu umožňuje volný pohyb i nenáročné venkovní aktivity, zatímco svažitější partie jsou osazeny keřovým patrem, které zajišťuje vizuální měkkost a zároveň přirozeně vymezuje jednotlivé části zahrady. Součástí návrhu jsou také dřevník, kompostéry, prostor s ohništěm a altán. Prostorová skladba zahrady zohledňuje potřeby různých skupin uživatelů – najdeme zde houpačku pro relaxaci, strom se soustřednou kruhovou lavicí nebo venkovní sprchu.
Stempel Tesař architekti
1 komentář
přidat komentář
Předmět
Autor
Datum
bohatý kraj
MM
26.02.26 12:26
zobrazit všechny komentáře

Více staveb od Stempel & Tesař architekti