Nová radnice pro Prahu 7 - výsledky soutěže

Dvoukolová veřejná projektová architektonická soutěž

Zdroj
CCEA MOBA
Vložil
Tisková zpráva
18.05.2016 16:10
Atelier bod architekti

Předmětem soutěže bylo zhotovení návrhu rekonstrukce a interiéru budovy na adrese U Průhonu 1338/38 pro sídlo Úřadu městské části Praha 7. Soutěž hledala odpověď na otázku, jak má v 21. století vypadat radnice městské části: jak na stávajícím skeletu budovy postavit dům, který bude reprezentativní, uživatelský přívětivý a hlavně bude umět stárnout a zachovat si svou důstojnost i za 50 či více let.

Vyhlašovatel: Městská část Praha 7
Organizátor: Ing. arch. Igor Kovačević Ph.D.
Sekretář soutěže: Ing. arch. Igor Kovačević, Ph.D.
Předseda poroty:
Ing. arch. Kamil Mrva

Řádní členové poroty - závislí
Mgr. Jan Čižinský - místopředseda poroty
PhDr. Ing. arch. Lenka Burgerová, Ph.D.

Řádní členové poroty - nezávislí
Ing. arch. Kamil Mrva
Arch. Silvia Brandi (IT )
MArch Jörn Aram Bihain (BE )
Ing. arch. Lukáš Kordík (SK )
Ing. arch. Lukáš Kohl (CZ)

Náhradníci poroty - závislí
Pavel Zelenka

Náhradníci poroty - nezávislí
Ing. arch. Magdalena Rochová

Datum konání soutěže: 19. 02. 2016 - 02. 05. 2016
Datum zveřejnění výsledků: 17. 05. 2016
Počet odevzdaných návrhů: 70
Ceny a odměny celkem: 1.500.000,- Kč



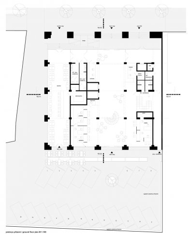
1. cena (550.000,- Kč)

Autoři: Atelier bod architekti s. r. o. / Vojtěch Sosna, Jáchym Svoboda, Jakub Straka, Jan Svoboda

Hodnocení poroty: Porota na tomto návrhu hodnotí kladně zejména jednoduchost a jasný výraz, který přísluší právě veřejné budově a odůvodněné použití základního architektonického jazyka jako je kontrast mezi světlem a stínem, materialitou a lehkostí. Zároveň se jedná o přístup k rekonstrukci respektující stávající konstrukci i kontext, ve kterém se budova nachází. Porota má však výhrady ke ztvárnění obřadní síně, která by svým výrazem mohla být velkorysejší a odpovídat tak celkové architektuře budovy. Ačkoli se jedná o technologicky standardní projekt, je zde prostor, aby se mohl po energetické stránce dále rozvinout. Dopracování z hlediska technologií je také podmínkou realizace tohoto projektu, stejně jako zvážení lepší integrace obnovitelných zdrojů do konceptu budovy. Stejně důležité bude prozkoumání stávající konstrukce, možnosti jejího odhalení a koexistence tohoto přístupu s nutným technickým zařízením budovy.




2. cena (350.000,- Kč)
Autoři: 
nne-Sereine Tremblay, Jan Kudlička

Hodnocení poroty: Na návrhu porota oceňuje zejména přímočaře zvolený koncept, který s respektem k původnímu stavu odhaluje a používá stávající konstrukci jako hlavní estetický prvek. Dalším silným vizuálním motivem může být externí stínění budovy, které ovšem není v návrhu dostatečně explicitně popsáno ani zobrazeno. V případné fázi dopracování studie bude nutné se na tento motiv soustředit, stejně jako na adekvátní vstup do budovy se zádveřím. Pochybnosti obzvláště v prezentaci interiérů vzbudila estetická kvalita konstrukce, která nemusí splnit očekávání autorů. Zároveň subtilní ztvárnění fasády by muselo být podrobeno hlubšímu dopracování. Z technologického hlediska, je chvályhodné, že návrh pracuje s fotovoltaickým systémem i se zpětným využíváním dešťové vody. Stejně jako u dalších návrhů by tento aspekt využití technologií musel být dopracován.




3. cena (250.000,- 
Kč)
Autoři:  Martin Čeněk, Dalibor Hlaváček, Ludvík Holub, Zuzana Kučerová

Hodnocení poroty: Pečlivě propracovaný návrh, který nabízí stavebně i technologicky poměrně úsporné řešení, je proveditelný a vhodně aplikuje fotovoltaický systém. Porota na vnitřním uspořádání oceňuje především návrh druhého schodiště, které umožňuje více reprezentativní a společenské využití této vertikální komunikace i přilehlých prostor. Dopracovat by si zasloužila deklarovaná propojenost a přístupnost přízemí až do vnitřního dvora, která však díky zvoleným architektonickým prostředkům není tak silná – vstup z ulice blokuje jednak transversální rampa a směrem do dvora zmenšuje prostupnost půdorysné uspořádání. Esteticky racionální fasáda by mohla být přepracována tak, aby připomínala méně standardní administrativní budovu a více budovu veřejnou.


www.novaradnicepraha7.cz
0 komentářů
přidat komentář

Související články