Dostavba Jihočeské vědecké knihovny - výsledky soutěže

Jednofázová užší projektová architektonická soutěž

Zdroj
Jihočeská vědecká knihovna v Českých Budějovicích
Vložil
Tisková zpráva
05.02.2017 07:40
Kuba & Pilař architekti
Ivan Kroupa architekti
Projektil architekti

Předmětem soutěže bylo zpracování architektonického návrhu dostavby Jihočeské vědecké knihovny v Českých Budějovicích. Návrh měl zahrnovat jak dostavbu, tak nutné stavební úpravy stávající budovy. Mimo prostorového, provozního a funkčního uspořádání měl návrh vyřešit také estetickou podobu objektu a úpravy souvisejících ploch veřejného prostoru dle soutěžních podmínek, a to zejména při dodržení ekonomických možností zadavatele.

Vyhlašovatel: Jihočeská vědecká knihovna v Českých Budějovicích
Sekretář soutěže: Bc. Štěpán Vondráček
Řádní členové poroty - závislí
Mgr. Ivo Kareš, ředitel knihovny
Mgr. Patrik Červák, vedoucí odboru kultury a památkové péče Jihočeského kraje
JUDr. Tomeš Vytiska, radní Jihočeského kraje

Řádní členové poroty - nezávislí
Ing. arch. MgA. Michal Fišer
Doc. Ing. akad. arch. Jan Šépka
Mgr. A. Luboš Zemen
Doc. Ing. arch. Radek Kolařík

Náhradníci poroty - závislí
Mgr. Ivana Stráská, první náměstkyně hejtmana Jihočeského kraje
Mgr. Petr Podhola, člen zastupitelstva Jihočeského kraje

Náhradníci poroty - nezávislí

Ing. arch. MgA. Petr Uhlík
Ing. arch. Filip Landa

Datum konání soutěže: 7. 10. 2016 - 23. 12. 2016
Datum zveřejnění výsledků: 31.1.2017
Počet odevzdaných návrhů: 6
Ceny a odměny celkem: 1 080 000,- Kč



1. cena - 300 000,- Kč
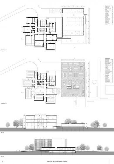
Autor: 
Kuba & Pilař architekti s.r.o.
Hodnocení poroty: Návrh rozšiřuje knihovnu lapidární formou "levitující" jednopodlažní dostavby, která je s původním objektem spojena pouze v místě současného vstupu. Vnější plášť tvoří předsazené vertikální skleněné copilitové lamely s potiskem, které vytváří stínící prvek a současně odcloní dění uvnitř a vně stavby. Horizontální hmota odpovídá provozně dispozičním požadavkům zadavatele na vytvoření nového bezbariérového vstupu do budovy a rozšíření prostoru volného výběru v návaznosti na vstupní část objektu. Toto řešení umožní knihovně volně zpřístupnit více než 130.000 svazků knih a periodik. Zároveň ponechává stávajícímu objektu jeho dominantní postavení a prostor pro budoucí rekonstrukci. Součástí studie jsou úpravy vstupu a okolního veřejného prostrantsví, ale také nové parkoviště a dopravní napojení na Lidickou třídu. Zároveň dojde k přemístění a úpravě obou současných památníků. - zachovává dominatní polohu stávající budovy - dotváří solitérní zástavbu celého území - má přehlednou dispozici na jedné úrovni - vyhovuje provozním požadavkům knihovny - objemově, konstrukčně a finančně jde o přiměřené a úsporné řešení - parametry přístavby respektují stanovisko památkové péče Doporučení pro dopracování: - do doby vybudování okružní křižovatky je nutné navrhnout variantní řešení dopravního napojení (souvisí s úpravami veřejného prostranství) - propojení obou budov spojovacím krčkem není přesvědčivě řešeno - přístup z parkingu do budovy vyřešit vhodnějším způsobem - zvážit orientaci studijních míst směrem k parku.



2. cena - 240 000,- Kč

Autor: Ivan Kroupa architekti s.r.o.
Hodnocení poroty: 
- velkorysost prostorového konceptu, konstrukčně a finančně jde o náročné řešení - snaha o urbanistické dokomponování celé oblasti, čitelná orientace stavby - vyhovuje provozním požadavkům knihovny - bezbariérový přístup z parkingu je problematický



3. cena  - 180 000,-  Kč

Autor: 
Projektil Architekti a.r.o.
Hodnocení poroty: - ponechává stávajícímu objektu jeho solitérnost a posiluje význam instituce formou nástavby - optimálně využívá potenciál stávající budovy z hlediska prostorového uspořádání, ale provozně nevyhovujícím způsobem - maximálně zachovává parkové plochy s kvalitní výškovou modelací terénu - je v rozporu se stanoviskem památkové péče

0 komentářů
přidat komentář

Související články