Kanceláře Pudis

Fáze 01

Kanceláře Pudis
Adresa: Podbabská 1014/20, Bubeneč, Praha, Česká republika
Investor:PUDIS
Projekt:2024
Realizace:2025
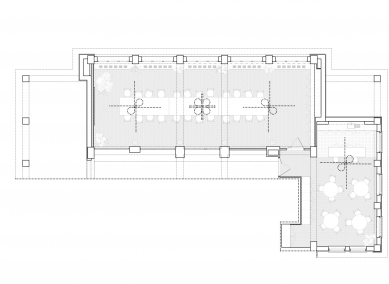
Užitná plocha:148 m2


Výběr a dodání květin: Pokojovky
Revitalizace s respektem k původnímu duchu

PUDIS je projektová a průzkumná společnost s více než padesátiletou tradicí. Specializuje se na návrhy silničních staveb, mostů a souvisejících stavebních řešení. Její pražské sídlo se nachází v devítipodlažním objektu na Podbabě, zaplněném projektovými kancelářemi a laboratořemi.

Do této budovy se firma přestěhovala v roce 2019 a od té doby postupně plánovala, jak její prostory přizpůsobit současným nárokům. První etapa proměny se soustředila na zázemí pro zaměstnance – prioritou byla moderní kuchyňka a kapacitní zasedací místnost. Původní rozsáhlá kuchyně s jídelnou již neplnila svou roli – obědy se přiváží z externích provozů a zaměstnanci je zpravidla konzumují ve svých kancelářích. Nově vznikla útulná kuchyňka se zázemím pro ohřev jídel a kvalitními kávovary sloužící i jako místo pro neformální setkávání. Uvolněný prostor po jídelně architekti přetvořili v zasedací místnost pro 26 osob, tolik potřebnou pro rozrůstající se tým.

Zásadním východiskem návrhu, který ve všech fázích zpracovalo Studio COSMO, byl respekt k architektonickému charakteru budovy. Rekonstruované prostory byly cíleně očištěny od nánosů necitlivých zásahů – odstraněny byly vestavěné příčky, podhledy, sokly či povrchové kabeláže. Interiér se navrátil ke svému původnímu tvarosloví a materialitě; byly vyzdviženy kvality, na kterých byl objekt vystavěn: betonový skelet, přirozené světlo a dubové parkety. Tyto prvky architekti vědomě kombinovali s akcenty firemní identity, aby výsledný prostor působil soudržně a současně.

Autorem úpravy původního loga ve tvaru křižovatky je společnost KNOW HOW solutions, jejíž práce byla jedním z východisek návrhu. Na firemní identitu architekti ze Studia COSMO navázali i ve výrazných designových prvcích, jako jsou atypická svítidla navržená na míru rekonstruovanému prostoru – svým tvarem odkazují ke křižovatkám, tedy hlavnímu motivu loga, a symbolicky propojují profesní zaměření firmy s estetikou interiéru.

Použité materiály podtrhují precizní a současný charakter prostoru – v kuchyňské části dominuje nerezové obložení a keramický ostrůvek, v zasedací místnosti zase atypické MDF obložením, které nese motiv loga firmy využitý jako vzor. Tyto netradiční prvky a nábytek na míru byly dodány specialisty z firmy Brick.
0 komentářů
přidat komentář

Více staveb od Studio COSMO