Vliv umístění střešních oken na denní osvětlení místnosti

Vložil
Tisková zpráva
16.08.2006 11:00
Zraková pohoda je jednou hlavních návrhových podmínek zohledňujících zdravé vnitřní prostředí budov. Aby bylo dosaženo světelného komfortu, je nutné zajistit nejen dostatečnou intenzitu denního světla v místnosti a v jejích funkčně vymezených částech, ale také, pokud možno, co nejvíce rovnoměrné osvětlení.
Rovnoměrnost osvětlení hraje důležitou roli při návrhu osvětlovacích otvorů. Pobyt v místnosti s nerovnoměrným osvětlením vyvolává zhoršené vidění. Při pohledu do takové místnosti je zrak vystavován neustálému střídání vysokých a nízkých intenzit osvětlení, což způsobuje, že člověk rozeznává méně detailů, které by jinak viděl v případě vhodných světelných podmínek [1, 2].
Rovnoměrnost denního osvětlení závisí u střešních oken na světelné propustnosti zasklení a především na jejich ploše a umístění vzhledem k osvětlované místnosti.
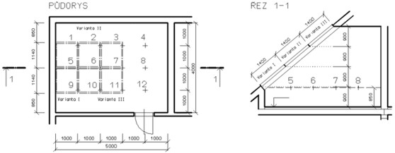
Posouzení denního osvětlení obytné místnosti se střešními okny a zhodnocení vlivu jejich umístění na rovnoměrnost osvětlení bylo provedeno v následujícím příkladu. Místnost půdorysných rozměrů 4m x 5m je osvětlovaná dvěma střešními okny o velikosti 1140mm x 1400mm, celková plocha okna 3,2 m2, plocha zasklení 2,8 m2. Okna jsou osazena v šikmé střeše o sklonu střešní roviny 40°.
Posouzení denního osvětlení místnosti bylo provedeno pro tyto návrhové varianty:
  • Varianta I: střešní okna umístěna blíže střešnímu okapu, výška spodní hrany okna 0,90 mm nad úrovní podlahy v místnosti,
  • Varianta II: střešní okna umístěna dále od střešního okapu, výška spodní hrany okna 1,8 m nad úrovní podlahy,
  • Varianta III: střešní okna umístěna blíže střešnímu hřebeni, výška spodní hrany okna 2,70 mm nad úrovní podlahy.

Obr.: Schéma posuzované místnosti se střešními okny (navrhovanými ve Variantě I, II a III)


Posouzení denního osvětlení místnosti se střešními okny
Pro vyhodnocení osvětlenosti uvedené místnosti byl proveden výpočet činitele denní osvětlenosti dle ČSN 73 0580 Denní osvětlení budov [3] ve zvolených bodech na srovnávací rovině ve výšce 850 mm na podlahou. Schéma místnosti s vyznačením jednotlivých bodů (1 až 12) je uvedeno na obrázku 1. Výpočty byly provedeny pomocí počítačového programu DEN, DQL (autor Ing. Tomáš Maixner) pro tyto vstupní údaje: světelné odrazivosti stropu p=0,70, stěn p=0,55, podlahy p=0,30, okenního ostění p=0,60, okolního terénu p=0,10; světelná propustnost zasklení okna t=0,72- dvojsklo, činitel znečištění skla tz1=0,90 z vnitřní strany, tz2=0,80 z vnější strany.
Výsledky výpočtu činitele denní osvětlenosti charakterizujícího úroveň denního osvětlení na srovnávací rovině v posuzované místnosti a vyhodnocení rovnoměrnosti osvětlení jsou pro jednotlivé návrhové varianty porovnány v tabulkách 1 a 2.

Tabulka 1: Činitel denní osvětlenosti stanovený na srovnávací rovině v posuzované místnosti:

Poznámka: U posuzovaného střešního okna nebyly uvažovány žádné vnější překážky, z toho důvodu je vnější odražená složka činitele denní osvětlenosti De=0%.


Tabulka 2: Rovnoměrnost denního osvětlení v místnosti se střešními okny:

Poznámka: Hodnoty činitele denní osvětlenosti D[%]: minimální Dmin, maximální Dmax, průměrné Dprům

Ukázka grafického znázornění rozložení denního světla na srovnávací rovině v posuzované místnosti je pro jednotlivé varianty uvedena na obrázku 2.

Vatianta I:

Varianta II:

Varianta III:

a)
b)
Obr. 2: Grafické znázornění rozložení denního světla v posuzované místnosti, Varianta I, II, III
a) Průběh izofot (spojnic míst se stejným činitelem denní osvětlenosti) na srovnávací rovině
b) Prostorový graf (D% ... činitel denní osvětlenosti)

Dále bylo provedeno posouzení uvedené místnosti osvětlované čtyřmi střešními okny:
  • Varianta IV: kombinace oken z Varianty I a Varianty III
  • Varianta V: kombinace oken z Varianty II a Varianty III
Výsledky posouzení denní osvětlenosti místnosti v těchto dvou návrhových variantách jsou shrnuty v tabulce 3 a graficky znázorněny na obrázku 3.

Tabulka 3: Osvětlenost posuzované místnosti se střešními okny ve variantách IV a V:


Varianta IV:

Varianta V:

a)
b)
Obr. 3: Grafické znázornění rozložení denního světla v posuzované místnosti, Varianta IV, V
a) Průběh izofot (spojnic míst se stejným činitelem denní osvětlenosti) na srovnávací rovině
b) Prostorový graf (D% ... činitel denní osvětlenosti)


Požadavky na denní osvětlení místností
Základním hlediskem pro stanovení požadavků na úroveň denního osvětlení budov je zařazení zrakové činnosti podle zrakové obtížnosti v souladu s poměrnou pozorovací vzdáleností kritického detailu a s charakteristikou zrakové činnosti do 7 tříd podle ČSN 73 05080-1 [3] - viz tabulka 4.
Hodnoty činitele denní osvětlenosti uvedené v tabulce musí být splněny [3]:
  • minimální Dmin: ve všech kontrolních bodech vnitřního prostoru nebo jeho funkčně vymezené části,
  • průměrný Dm: u vnitřních prostorů s horním osvětlením nebo s osvětlením kombinovaným, u kterých je podíl horního osvětlení na průměrné hodnotě činitele denní osvětlenosti Dm roven nejméně jedné polovině.
Tabulka 4: Požadované hodnoty činitele denní osvětlenosti pro třídy zrakové činnosti [3]:

Poznámka k tabulce:
  1. Průměrná hodnota činitele denní osvětlenosti Dm se určuje jako aritmetický průměr hodnot v kontrolních bodech zvolené pravidelné sítě na vodorovné srovnávací rovině.
  2. Rovnoměrnost denního osvětlení se určuje jako podíl nejmenší a největší hodnoty činitele denní osvětlenosti, zjištěné v kontrolních bodech sítě na vodorovné srovnávací rovině v celém rozsahu vnitřního prostoru nebo v jeho funkčně vymezené části.
  3. Požadavky na hodnoty činitele denní osvětlenosti zvyšují, např. při malém kontrastu jasů, pro krátký pozorovací časový úsekem, s ohledem vyšší věkový průměr či zdravotní stav obyvatel, při provozních podmínkách narušujících dobrou viditelnost a všude tam, kde by se vlivem špatné viditelnosti mohla způsobit chyba vedoucí nepřesnostem, haváriím, vážným úrazům apod.
  4. Například Třída zrakové činnosti IV zahrnuje zrakové činnosti jako středně přesná výroba a kontrola, čtení, psaní, obsluha strojů, běžné laboratorní práce, vyšetření, ošetření, hrubší šití, žehlení, příprava jídel, závodní sport.
Vnitřní prostory s trvalým pobytem lidí musí mít zajištěno denní osvětlení splňující požadavek na hodnotu Dmin alespoň 1,5% a na průměrného činitele denní osvětlenosti Dm nejméně 3%, i když by pro danou zrakovou činnost stačily nižší hodnoty.
U obytných místností je vyžadována minimální hodnota činitele denní osvětlenosti 0,5%, která musí být splněna ve všech kontrolních bodech na srovnávací rovině. Průměrná hodnota činitele denní osvětlenosti je nejméně 2% [4].

Porovnání uvedených normativních požadavků s hodnotami výsledků výpočtů činitele denní osvětlenosti v posuzované místnosti je patrné, že nejvhodnější řešení z hlediska denního osvětlení a zajištění jeho dostatečné rovnoměrnosti je návrh střešních oken ve Variantě II a V.

Závěr
Střešní okna umožňují vyšší osvětlenost podstřešních místností denním světlem, neboť zpravidla nebývají zastíněny venkovními překážkami. Vyšší intenzity osvětlení u místností se střešními okny jsou však především způsobeny tím, že jas oblohy se zvyšuje směrem od horizontu k zenitu. Tato skutečnost vysvětluje i zvýšení činitele denní osvětlenosti v posuzované místnosti s oknem ve Variantě II v porovnání s výsledky hodnocení s oknem v nižší poloze - Varianta I. Nižší osvětlenost místnosti posuzované ve Variantě III je způsobena polohou okna vzhledem k posuzované místnosti. Gradace jasu oblohy lze u střešních oken s výhodou využít při návrhu podstřešních místností s vysokými nároky na osvětlenost denním světlem.
Dostatečnou velikostí zasklených ploch střešních oken a jejich vhodným umístěním vzhledem k půdorysnému uspořádání místností a požadavkům na zrakovou činnost v jejich jednotlivých funkčně vymezených částech lze dosáhnout optimálních světelných podmínek pro obytné i pracovní prostory. V neposlední řadě je možné rovnoměrnost osvětlení ovlivnit také řešením interiéru místností, kde světlé a lesklé povrchy světlo odrážejí, matné rozptylují a tmavé pohlcují.
U obytných místností by střešní okno mělo být osazeno tak, aby jeho spodní hrana byla max. 1100 mm nad podlahou [6]. Je také možné kombinovat střešní okna s doplňkovými bočními osvětlovacími otvory pro zajištění vizuálního kontaktu s okolím.

Použitá literatura
[1] Plch, J. Světelná technika v praxi. IN-EL, Praha 1999
[2] Rybár, P. a kol.: Denní osvětlení a oslunění budov. Era group, Brno 2002
[3] ČSN 730580-1 Denní osvětlení budov. Část 1: Základní požadavky (1999)
[4] ČSN 730580-2 Denní osvětlení budov. Část 2: Denní osvětlení obytných budov (1992)+ změny Z1 (1997), Z2(1999)
[5] ČSN EN 12665 (ČSN 36 0001): 2003 Světlo a osvětlení - Základní termíny a kritéria pro stanovení požadavků na osvětlení
[6] ČSN 73 4301 Obytné budovy (2004)