![]() |
General Director of VELUX Czech Republic s.r.o. David Brož
![]() |
![]() |
![]() |
| Ing.arch. K.Bukolská, Mag.Arch. Juri Troy, MA Lone Feifer, doc. Ing. arch. P.Suske, CSc., Ing. arch. Ľ. Závodný |
The criteria for evaluating the competition entries were the quality of the indoor environment of the building in terms of usability of the layout, the amount of daylight in the interior, and ensuring ventilation; the impact on the environment in terms of architectural processing, urbanism, materials used, and the use of renewable resources. The third criterion was energy efficiency, i.e., zero energy consumption balance within the annual balance. The preSBToolCZ was used for the quantitative assessment of the mentioned criteria, which is the national assessment tool for building quality and expresses the sustainability of the construction.
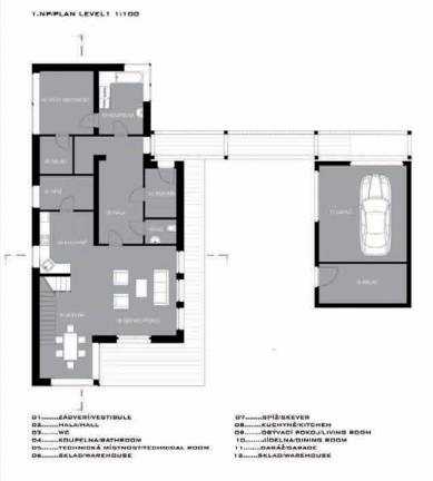
The winner of the new buildings category was the project by students Kristýna Klucová and Pavlína Šmejkalová from the Faculty of Civil Engineering, CTU in Prague.
The competition design for a family house with a studio in Mělník took into account the difficult conditions of the sloping terrain and maximally utilized the given building plot. The jury appreciated the balanced mass solution of both the residential and working parts of the house, which offers users comfort both indoors and in the garden. The winning house achieved a sustainability score of 9 out of a possible 10 points according to the preSBToolCZ tool, placing it at the level of a gold certificate. The project excellently combines low-energy solutions with the use of renewable energy sources. The chosen construction materials are primarily wood-based, and the project also addresses the use of rainwater. As a result, the design has some of the lowest carbon dioxide emissions in the competition. In terms of indoor environment quality, the house achieves high standards, especially in visual comfort, where sunlight enters the house from all directions, as well as in acoustics, thermal comfort, and indoor air quality.
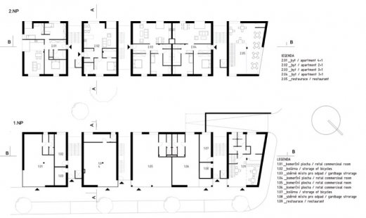
In the renovations category, the proposal by students Juraj Kačenka and Eva Bírová from the Faculty of Architecture, VUT in Brno won.
![]() |
In the first year of the Active House Award competition, 2 special prizes were also awarded. The first went to Norbert Obršál from the Faculty of Architecture, VUT in Brno for the project titled The City-Creating House.
The design uniformly fulfills the requirements from all three pillars of sustainable construction, as it is environmentally friendly while providing quality indoor space. The house is designed for various social classes. The jury appreciated the concept of the apartment building as a housing solution that is spatially less demanding on the building plot. The chosen solution represents a combination of spaces for living and working simultaneously, which allows reducing transportation demands and ensures the procurement of green energy throughout the day when people are typically not at home. The architectural solution of the building is refined and well fits into the context of the site.
The second special prize was awarded to Kryštof Foltýn, a student of the Faculty of Architecture, VUT in Brno. The jury appreciated his project titled Comfortable Living Above the City for the choice of an apartment building that innovatively works with the concept of a sloped roof to utilize daylight and the potential for natural ventilation incorporated in the basic volume of the building. The design is highly energy efficient and has some of the lowest carbon dioxide emissions among the competition projects.
In addition to awards in the two main categories and two special prizes, the competition also awarded 3 honorable mentions. The award for the project of the family house Activ House Lichnov went to a pair of students from the Faculty of Architecture and Civil Engineering at CTU in Prague, Tereza Podolská and Jiří Horký. The jury particularly appreciated the modest approach of unobtrusive architecture, which sensitively responds to the surroundings of the house. The solutions for the facades and the arrangement of window openings to different world sides ensure good visual comfort
and atmosphere year-round.
Another honorable mention was awarded to students Miloš Hradec and Jiří Jašek from the Faculty of Architecture, VUT in Brno for their proposal titled House A. This competition design works with a strong concept of the house, which the jury does not see as a model solution for future concepts of buildings due to its closed nature and disconnection from the surroundings, but appreciated its significant conceptual search for new, unproven solutions for active houses with a 100% share of renewable energy utilization.
The third honorable mention was awarded to Jaroslav Matoušek's project from the Faculty of Architecture, VUT in Brno for the house embedded in the slope in Svatá Kateřina. The jury appreciated the conceptual solution of the building, which works with the principle of embedding the object below the terrain. It is a possible solution that brings energy efficiency to a self-sufficient house and thermal stability throughout the year, albeit in this design slightly at the expense of resident comfort. However, when we set aside the practical impacts of the building, it is a functional principle applicable in the quest for future constructions.
The partner prize of the competition, awarded by the Institute for Active Houses, was received by Michal Mázl from the Faculty of Civil Engineering, VUT in Brno for his work titled The Center for Ecological Activities of the City of Most.
![]() |
Photo gallery from the awards ceremony