Block Karlín

98 bytes

Block Karlín
Collaboration:Magda Palečková, Evangelos Paxinos
Address: Sokolovská, Karlín, Prague, Czech Republic
Project:2023
Completion:2025


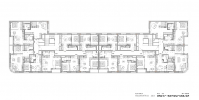
For the residential project BLOCK Karlín, we were invited to design the interiors, including layout adjustments for 98 fully furnished rental apartments. The goal was to create a diverse offering of homes, where everyone can find their "own" – an apartment where they feel naturally comfortable. We consciously transferred the playful colorfulness and character of the exteriors into the interiors as well. As a result, a range of different atmospheres emerged, giving individual apartments a unique expression and identity. We worked with colors, materials, and details so that the interiors would feel contemporary, timeless, and pleasant for everyday life. The project offers apartments with layouts ranging from 1+kk to 4+kk, designed with an emphasis on functionality, efficient use of space, and quality of living at a rental standard.
under-construction architects
The English translation is powered by AI tool. Switch to Czech to view the original text source.
0 comments
add comment

more buildings from under-construction architects