Vlastní dům Richarda Neutry s ateliérem

Neutra VDL Studio and Residences

Vlastní dům Richarda Neutry s ateliérem
Adresa: 2300 Silver Lake Boulevard, Los Angeles, USA
Investor:Cees H. Van der Leeuw
Realizace:1932-33, 1940, 1963-66
Užitná plocha:325 m2
Plocha pozemku:390 m2


Ve středu 2. července 2014 přicestoval do Brna nejmladší syn Richarda Neutry, aby v obývacím pokoji vily Tugendhat představil jeden ze stěžejních kalifornských projektů tohoto vídeňského rodáka. V úvodním slovu Vladimír Šlapeta přiblížil osobnost Richarda Neutry a jeho vztah k bývalému Československu. Neutra během studií na vídeňské technice zažil rozpad monarchie, vykročení civilizace do 20. století a nástup moderny. Stihl být Loosovým žákem i Mendelsohnovým asistentem, Wrightovým spolupracovníkem, Schindlerovým podnájemníkem a spoluzakladatelem losangelské Akademie moderních umění. Stihl se potkat s mistry staré éry jako Sullivan nebo Holabird, udržoval intenzivní kontakty s meziválečnou evropskou avantgardou a byl součástí experimentálního programu Case Study Houses v poválečné Americe.
Na pozvání bratří Šlapetů přijel Richard Neutra se svojí chotí v roce 1963 přednášet do Prahy (později přicestoval do Československa ještě dvakrát a v roce 1969 pobývali Neutrovi v brněnském hotelu International). V době první návštěvy Československa vyhořel také jejich vlastní dům, o němž měla být přednáška Raymonda Neutry, který si překvapivě vybral profesní dráhu lékaře. Snadno nás přesvědčil, že i jeho otec se snažil svými stavbami lidi léčit a Raymond se nyní naopak snaží rekonstrukcemi léčit stavby svého otce. Experimentální dům VDL, v němž byly ubytovány tři rodiny a zároveň sloužil jako Neutrova kancelář, se musel na Raymondovi zákonitě podepsat. Od mala pomáhal otci třídit projekty a fotografovi Juliovi Shulmanovi dělal asistenta. Přestože sám není architektem, přiučil se od otce řadu věcí, které mu byly k užitku také v biologii a sociologii.
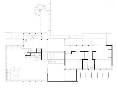
Neutrovo kalifornské studio na břehu Silver Lake mělo jít v tomto příkladem a jasně odrážet, jak byl měl vypadat zdravý životní styl. V první fázi dům zabíral 254 m², v roce 1940 pak bylo přistavěno dalších 84 m² a po ničivém požáru v roce 1963 prošel dům významnou rekonstrukcí.
Studio VDL nese název po holandském průmyslníkovi a filantropovi Cornelius Hendrik van der Leeuw, který, ač sám nebyl architektem, zaujímá v dějinách holandské architektury 20. století významné místo. Leeuw se v roce 1917 stal společníkem v rodinné firmě Van Nelle obchodující s kávou, čajem a tabákem. Byl však člověkem se širokými zájmy a rozhledem. Proto se v roce 1931 rozhodl studoval u Sigmunda Freuda ve Vídní, kde v roce 1939 získal doktorát z oboru psychiatrie. Po anexi Rakouska odešel zpět do Holandska, kde byl těsně po válce pověřen ministrem k vypracování plánu obnovy Rotterdamu, následně se stal kurátorem TU v Delftu, kde pořádal architektonické přednášky a poté vedl představenstvo nadace Kröller-Müller.
První setkání Neutry s Van der Leeuwem se uskutečnilo v roce 1930 v Basileji, kde přijal pozvání podívat se do Holandska na právě dostavěnou rodinnou továrnu Van Nelle. Zároveň důkladně poznal nizozemskou scénu, která již před první světovou válkou dokázala naplňovat myšlenky amerického architekta Franka Lloyda Wrighta.
Druhé Neutrovo setkání s Van der Leeuwem proběhlo v New Yorku, kdy získal šek v hodnotě 3000 dolarů na realizaci experimentálního domu v Kalifornii. Za Leeuwova přispění chtěl Neutra docílit zprůmyslnění výroby domů a zpřístupnit kvalitní bydlení širšímu okruhu kupců. Neutra toužil oslovit velké společnosti, které by mohly podobně jako Fordova továrna vyrábět levně a efektivně celé domy. Podobné snahy měl také americký vizionář Buckminster Fuller nebo ve francouzský inženýr Jean Prouvé, ale lidem se nakonec zalíbila nabídka “vynálezce předměstí“ Williama J. Levitta.
Studio VDL, ačkoli vzniklo ve 30. letech minulého století, předkládá otázky platné i pro dnešní dobu. Hledá rovnováhu mezi odpovídající spotřebou prostoru, materiálu a práce. Dům prošel řadou úprav, proměnou využívání stávajících místností i dostavby nového křídla. V domě lze nalézt řadu odkazů, které Neutra načerpal v průběhu svého života. Od Loosova vztahu k oknům a způsobu práce s prostorem přes maurské a japonské koncipování komorních atriích až po fenomenologické vnímání prostorů bez ohledu, jak dům vypadá, ale spíše, co v něm cítí prostřednictví dalších smyslů.
V roce 2008 prošel dům zatím poslední velkou rekonstrukci, kdy se z aukce Shulmanových fotografií podařilo opravit  střechu. V současnosti je dům zapůjčován ke komerčním akcím, ale také pokračuje ve vzdělávání, spolupracuje s univerzitami, hostí umělce a snaží se naplňovat odkaz Richarda Neutry.
0 komentářů
přidat komentář

Více staveb od Dion Neutra, Richard Neutra