UNI Space

UNI Space
Spolupráce:Radek Bláha
Adresa: Na Rybníčku 626/1, Opava, Česká republika
Investor:Slezská univerzita v Opavě
Realizace:2020


Fotografie: Jiří Štencek
Projekt UNI Space v prostoru budovy rektorátu Slezské univerzity v Opavě

Projekt řeší problém nedostatečného infrastrukturního zázemí Slezské univerzity v Opavě (SU) pro zajištění kvalitní výuky, posílení otevřenosti, posilování mezinárodní spolupráce a zvýšení zájmu o studium na univerzitě. Cílem projektu bylo vytvořit vysoce kvalitní zázemí na Slezské univerzitě prostřednictvím zkvalitnění interiérového, audiovizuálního a dalšího vybavení a zlepšení otevřenosti a atraktivnosti studia na SU. Projekt podporuje rozvoj mezinárodní spolupráce a posiluje atraktivity studia na Slezské univerzitě. Díky projektu bylo významným způsobem podpořeno vnímání SU jako moderní a progresivní univerzity rodinného typu, která poskytuje mezinárodně konkurenceschopné vzdělání.

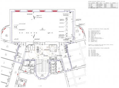
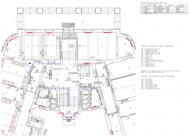
Předmětem naší dodávky bylo návrh a vypracování projektu atypických prvků mobiliáře a jeho zapracování do stávajících prostor budovy rektorátu bez nutnosti větších stavebních zásahů do budovy. Objekt rektorátu se nachází v centru Opavy, na nároží ulic Na rybníčku a Olbrichovi, s hlavní fasádou obrácenou do náměstí Republiky. Objekt čítá 5 nadzemních podlaží vč. původního podkroví (5NP), a 1 podzemní podlaží. Předmětem interiérových úprav byly vybrané společné části budovy, prostory chodeb a vstupního foyer (1NP-3NP) a dále pak uzavřená velká školící místnosti v 3NP a univerzální učebna v 1PP. Součástí projektu bylo rovněž technologická modernizace reprezentativního sálu auly.

Honosná klasicizující budova vznikla původně jako vojenské velitelství s tanečním reprezentativním sálem v první čtvrtině minulého století a univerzitě slouží od roku 2003.

Materiálové a tvarové řešení navrženého interiéru citlivě navazuje na reprezentativní charakter historické budovy a podporuje její neoklasicistní vzhled. K vnitřní bohatě štukové výzdobě stěn a stropů jsme vložili odlehčený typ mobiliáře vytvořený ze subtilní jasanové konstrukce s rákosovým výpletem. Vzhledem k prostorově drobnějším místnostem vytváří tento typ mobiliáře ve frekventovaných komunikačních uzlech dostatečné soukromí všem uživatelům. Zdálo se nám vhodné použít tuto historickou technologii výroby nábytku jako spojení dvou světů, svět moderní technologie s historickým prostředím budovy. V rámci úprav jsme zaměnili novodobou keramickou dlažbu formátu 40x40cm za historicky bližší povrch vytvořený z litého teraca. Povrchy stěn a stropů byly krémovou barvou sladěny s narůžovělým odstínem litého teraca a s bělenou tonalitou dřevěného atypicky navrženého mobiliáře. Důležitým bodem bylo rovněž nové kvalitní nasvětlení řešených části interiéru.

Projekt je zajímavý nejenom tím, že vychází z architektury začátku 20 století a odkazuje se na taková jména jako Michael Thonet či Leopold Bauer, ale především tím, že nahlíží na vybavenost veřejných budov, škol, univerzit či kancelářských pracovišť trochu odlišným způsobem, než je běžné. Jedná se o návrh systémové stavebnice kancelářského nábytku, která má širokou škálu uplatnění. Je flexibilní a lze ji sestavovat do různorodých sestav. Rovněž nabízí uživateli množství funkcí (individuální a společná pracoviště, nebo čekací a relaxační zóny). Proto je navržený mobiliář vhodný do veřejných budov, hotelových loby, či kancelářských prostor.
IO Studio
0 komentářů
přidat komentář

Více staveb od IO Studio