Rodinný dům Vrané nad Vltavou

Rodinný dům Vrané nad Vltavou
Investor:Anna Petrů a Martin Šimíček
Realizace:2022


Dodavatel stavby: Dřevostavby Kučera
Ocenění:
Finalista Grand Prix Architektů Národní cena za architekturu 2025
Fotograf:
Petr Toman
Ekonomicky dostupný rodinný dům ve Vraném nad Vltavou
Pokud se zdá, že je kostka z pohledu aktuálních architektonických proudů již vyčerpané téma, bílá kostka ve Vraném nad Vltavou hovoří o opaku. Tvarově velmi jednoduchá čtvercová stavba k nám promlouvá velmi úsporným výtvarným jazykem. Strohá bílá krychle zaujme svou jednoduchostí a tím, že už jednodušší nemůže být. V rámci okleštěných výrazových prostředků bylo dosaženo maximálního výtvarného efektu. Nemá nic navíc a jde na samotnou podstatu. Vrací se ke kořenům modernistické architektury a je v konfrontaci k aktuálním architektonickým proudům.

RD Vrané nad Vltavou je koncipován jako příklad nízkonákladového modulárního domu, určeného pro ekonomicky středně situovanou rodinu. Jedinečnost domu spočívá v tom, že umožňuje růst společně s přibývajícími potřebami rodiny. Při zvyšujících se plošných nárocích je možné k domu velmi snadno připojit modulární jednotku, která dům rozšíří o potřebnou funkci. Celá idea je založena na myšlence, že dům roste společně s jeho uživateli a tento princip umožní rozložit investici do více fází, což v případě běžného domu není možné.

Začínající pár si tak nemusí dělat starosti s financováním velkého domu pro rodinu, kterou v dané chvíli nemá a dům je zredukován pouze na aktuální potřeby páru. K docílení této ideje je použitá technologii suché modulární výstavby, která je téměř okamžitá a minimalizuje negativní dopad stavebního procesu na život v domě.

Tvarově velmi jednoduchá čtvercová stavba zrcadlí hodnoty a životní nastavení lidí, kteří v ní žijí. Skromný, účelný a nenáročně definovaný vnitřní prostor je vytvořen pro život, nikoli na efekt. Interiér umožňuje, aby byl dotvořen vlastní představou uživatelů a nebyl tak jednostranně definován pohledem architekta. Neboť uživatel má možnost měnit interiér podle vlastních představ, musela být výtvarná koncepce domu natolik silná, aby dokázala držet pohromadě.

Jedná se o tvarově velmi jednoduchou stavbu – krychli, u které hraje čtvercový formát klíčovou roli v pochopení celkové výtvarné koncepce. Čtverec je vepsán do kompozičního uspořádání stavby a pomocí ortogonální kompozice je objem stavby horizontálně a vertikálně členěn do menších čtverců a kvádrů. Dělení je docíleno pomocí okenních formátů a sloupko příčkové konstrukce prosklené fasády. V místě venkovních schodišť je základní objem krychle hmotově doplněn pomocí stupňovitě vyskládaných kvádrů a naopak v místě terasy je část kvádrové hmoty z domu odebrána. Těmito jednoduchými prostředky bylo docíleno maximálního výtvarného efektu.

Pro ekonomickou dostupnost stavby byly použitý vesměs běžné stavební prostředky a technologie, a ekonomicky dostupné materiály a standartní systémové řešení. Stavba vyšla kolem 4mil. bez DPH.
Rodinný dům vzniknul na částečně podsklepené podezdívce rekreační chaty. Vzhledem k nevyhovujícímu stavebně-technickému stavu nadzemního zdiva původního objektu, bylo nutno stavbu odstranit. Z ekonomických důvodů však dávalo smysl zachovat stávající 1PP (částečné podsklepení objektu) a základovou podezdívku v nepodsklepené části, na jehož definovaný rozměr byla navržena dvou podlažní nástavba.

Zajímavost tohoto projektu spočívala v tom, že byl původně navržen v roce 2013 na opačnou stranu Vltavského údolí, do chatové osady u Mníšku pod Brdy. Zadání ze strany investora bylo téměř identické. Stavba měla vzniknout na podsklepené části původní chaty. Poslední spojitost obou projektů spočívala v tom, že z obou domů byl krásný výhled na vysílač Cukrák a ze strany obou investorů byl pohled na něj vyžadován. Projekt se bohužel nezrealizoval a skončil v projektové fázi architektonické studie. Po více než 10ti letech jsme na tuto studii navázali.

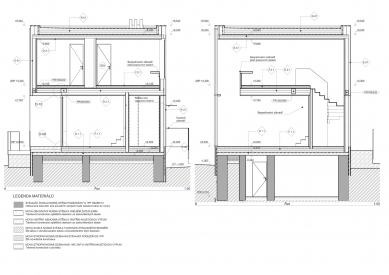
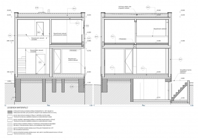
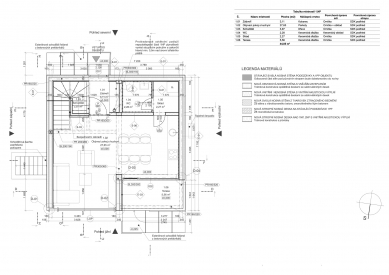
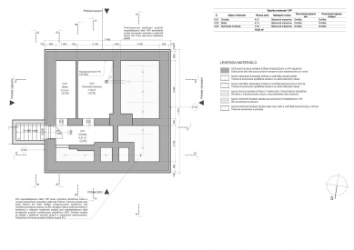
Vstup do domu je situován z jižní strany ulice. V 1NP je kromě vstupního zádveří umístěna i skladová místnost a WC s umyvadlem a dále pak hlavní pobytová místnost s kuchyní. Díky velkorysému severně orientovanému prosklení obytná místnost využívá rozptýlené světlo a těží z výhledu do původního sadu, s kterým je propojena pomocí kryté terasy a exteriérového schodiště. Pracovna v 2NP je prostorově propojena s hlavním pobytovou místností v 1NP pomocí ustupující stropní desky, která v místě pracovny konstrukčně vytváří ochoz. Dále je zde umístěna ložnice rodičů, dětský pokoj a koupelna se sprchovým koutem a toaletou. Stávající prostor 1PP, který odpovídá cca 1/2 podsklepení objektu je využitý jako technické zázemí, ve kterém jsou umístěny nové technologie spojené s přípravou tepla a teplé užitkové vody. Dále je využité jako skladovací zázemí. Prostor 1PP je bez dalších navrhovaných stavebních úprav je ponechán ve stávajícím stavu. Přístup do 1PP je nově navržen pomocí exteriérového schodiště z východní strany objektu.

Jedná o samostatně stojící objekt rodinného domu s dvěma nadzemními podlažími a 1 podzemním podlažím. Půdorysné rozměry objektu jsou 7,464 x 7,314 m. Konstrukční systém nové části objektu byl navržen jako lehký dřevěný montovaný skelet z KVH hranolů, tak aby výrazně nepřitěžoval stávající základovou konstrukci. Nosné stěny jsou umístěny na nově navrženou ŽB roznášení desku uloženou nad stávající podezdívkou 1PP.

Konstrukčně je řešen jako příčný dvojtrakt, s podobnými světlostmi traktů. Základní nosnou svislou konstrukcí jsou dřevěné hranoly průřezu 60/160 mm oboustranně opláštěné deskami ze sádrovláknitých desek. Základní vzdálenosti hranolů jsou 625 mm. Tyto hranoly jsou doplněny mohutnějšími sloupy průřezu 160/200, 160/300 a 300/300 mm. Tyto sloupy podepírají průvlaky, jsou tedy v místě zvětšené koncentrace zatížení. V místech otvorů jsou sloupky zdvojeny. V rozích objektu jsou buď sloupky zdvojeny, nebo navrženy čtvercového průřezu 160/160 mm. Objekt je zavětrován především opláštěním stěn sádrovláknitými deskami, které vytvářejí tuhou diafragmu. Vodorovná nosná konstrukce je navržena dřevěná trámová, místy doplněna dřevěnými průvlaky. Stropní trámy ve stropu nad 2.NP jsou navrženy průřezu 100/160 mm a ukládány jsou po 1,0 m. Přes tyto hranoly jsou pak přibity desky OSB. Ve stropu nad 1.NP jsou hranoly průřez 100/200 mm a jsou ukládány po 500 mm. V místě u schodiště mají průřez pouze 100/100 mm. Tyto stropní trámy jsou doplněny výměnami a mohutnějšími průvlaky.

Svislé obvodové konstrukce jsou opatřeny vnějším kontaktním zateplovacím systémem z dřevovláknité deskové izolace, systém konstrukce je navržen jako difúzně otevřený. Fasády jsou navrženy v povrchové úpravě bílým točeným jemnozrnným štukem. Okenní výplně jsou řešeny v provedení v kombinaci PVC a hliník ve stříbrnošedé barvě a jsou doplněny oplechováním ve shodné povrchové a barevné úpravě. je Objekt je zastřešen plochou nepochozí foliovou střechou s tepelnou izolací z pěnového polystyrenu. Výlez na střechu domu je umožněn střešním výlezem (otevíravý světlík) z koupelny 2NP. Střecha je opatřena dešťovým vyhřívaným vtokem s filtrem nečistot a dále bezpečnostním přepadem (chrličem) v atice na minimálně 2 pozicích. Dešťové svody jsou vedeny skrytě v rámci vnitřní dispozice. Střešní atiky jsou rovněž navrženy ve stejné povrchové úpravě jako okenní profily. Podlaha v celé budově je řešena jako dřevěná sendvičová parketová v obytných místnostech, a keramická dlažba v provozně-technických místnostech a prostorech s mokrým provozem, ve vstupním zádveří je navržena čistící zóna z přírodního kokosového vlákna. Všechny podlahy jsou vytápěné teplovodním podlahovým topením. Hydroizolační souvrství je navrženo ve standartu a těsnosti odpovídající požadavkům na protiradonovou izolaci vč. systému odvětrání prostoru pod podlahovou deskou obytného kontaktního podlaží. Založení objektu je stávající. Celá dřevěná nástavba spočívá na nové železobetonové desce tl. 160 mm, která je vybetonována na původních suterénních zdech. Stropní deska tl. 160 mm bude zatížena dřevěnou nástavbou.

V objektu není instalován systém EZS. V celém objektu kromě ložnice, ve které je výměna vzduchu řešena přirozenou výměnou oknem, je navržena nucená výměna vzduchu s rekuperací lokálními jednotkami, dále jsou navrženy samostatné odtahy vzduchu z koupelen a suterénu, dále kuchyňská digestoř. Vytápění objektu a ohřev TUV je zajištěn TČ.

Nové konstrukce a technologie objektu jsou navrženy ve standartu energeticky úsporného domu.
IO Studio
0 komentářů
přidat komentář

Více staveb od IO Studio