Tři bytové domy na Luzerner Ring

Tři bytové domy na Luzerner Ring
Adresa: Julia-Gauss-Strasse 5-9, Basilej, Švýcarsko
Soutěž:1989 - 1. cena
Projekt:1990-92
Realizace:1991-93
Užitná plocha:3595 m2
Plocha pozemku:3160 m2
Obestavěný prostor:13513 m3


Koncept
Obytné domy na západním okraji Basileje jsou součástí větší zástavby, která je typickým přikladem možností a hranic státní bytové politiky ve Švýcarsku. Jeden z mála větších, ještě nezastavěných pozemků, nacházejících se ve vlastnictví kantonu, byl po delšich politických sporech uvolněn k zástavbě. Úřadem hlavního architekta byl vypracován urbanistický koncept a pozemek rozdělen na pět samostatných sektorů. Jednotlivé parcely byly nabídnuty do pronájmu na 99 let profesionálním, neprofitním investorům, kteří na nich mohli realizovat bytovou zástavbu dle vlastního programu. Kanton jako vlastník půdy vyžadoval od investorů splnění určitých podmínek, z nichž dvě nejdůležitější byly:

- investoři se museli zavázat k současnému vypsání omezených architektonických soutěží.
- soutěžní projekty, stejně jako realizované stavby, musely vyhovovat tehdy platným švýcarským směrnicím zákona o subvencích v bytové výstavbě.

Domy jsou koncipovány jako tři identické, samostatně stojící objemy. Vytočení z pravoúhlého rastru bloku přebírá strukturu sousední zástavby a umožňuje odklonění jihozápadních fasád od hlučné ulice a orientaci většiny obytných prostor do volných ploch nového sídliště.
Urbanistickému konceptu odpovídá i diferencované pojetí fasád. Masivní, proti hluku a tepelným ztrátám vysoce izolované štítové a severní fasády kontrastují s otevřenými, prosklenými fasádami jihozápadními. Tento základní princip dvou typologií bere ohled nejen na světové strany a dopravní hluk, ale reaguje stejnou měrou i na různou kvalitu vnějších prostorů. Masivní stěny uzavírají celé sídliště vůči veřejnému prostoru, transparentní jihozápadní fasády s předsazenou konstrukcí teras se otevírají do privátní zeleně a vnitroblokového prostoru.
Zdrženlivá barevnost fasád bere zřetel na parkový charakter nejbližšího okolí. Světlá omítka masivních fasád tvoří neutrální pozadí pro zeleň vzrostlých stromů, šeď pozinkované oceli teras a zábradlí tvoří jemný konstrast k bílému nátěru přední fasády, v jejíž velkých prosklených plochách se mnohobarevné okolí zrcadlí. Světlešedý eternitový obklad zřetelně odsazuje horní kubus dvoupodlažních bytů od hlavního objemu.
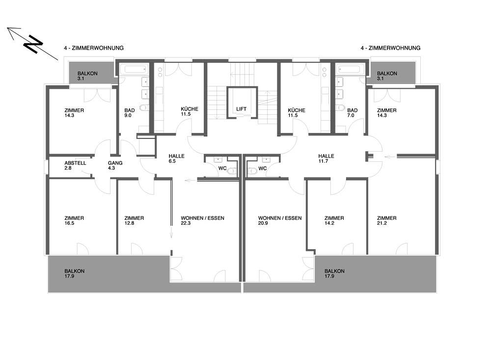
Dispozice bytů byla vyvinuta z logiky urbanistického konceptu. Většina obytných prostor je přes široké, obyvatelné terasy orientována na jihozápad. Okna ložnic při severovýchodní fasádě jsou proti hluku chráněna malým balkonem s akustickým podhledem. Kuchyně a přímo odvětratelné koupelny jsou situovány kolem společného jádra podél masivní fasády. Vertikální komunikaci domu tvoří velkoryse dimenzované, denním světlem prosvětlené schodiště s prosklenou výtahovou šachtou.
Pro každý typ bytu byly vypracovány půdorysné varianty, ze kterých si mohli zájemci o koupi vybrat podle svých individuálních představ. Nenosné příčky mezi pokoji dovolují úpravy v dispozici bytů podle měnících se potřeb majitelů i v pozdější době; fasáda a instalační jádra přitom zůstávají nezměněna. Vlastníkům bytů byla také ponechána volnost ve výběru podlahovin, obkladů, povrchů a vybavení kuchyně a koupelny.

Program - celkem 24 bytů v osobním vlastnictví
1. PP - technické prostory, protiletecký kryt, sklepy, prádelna, sušárna, kolárna
1. NP - 6 třípokojových bytů se soukromou předzahrádkou, obytná plocha 88 resp. 91 m²
2./ 3. NP - 12 čtyřpokojových bytů s terasou a balkonem, obytná plocha 103 m²
4./ 5. NP - 6 pětipokojových dvoupodlažních bytů se střešními terasami, ob. plocha 131 m²

Konstrukce
1. PP - základová deska, nosné zdivo a strop železobeton, příčky z vápenopískových tvárnic
1.-4. NP - obvodové a vnitřní nosné zdivo z cihel, schodišťová šachta a stropy železobeton, jihozápadní fasáda ocelové sloupky, terasy pozinkované ocelové profily, betonové desky na profilovém plechu
5. NP - železobetonový strop na ocelových sloupcích

Fasády
1.- 4. NP - tepelný plášť z minerální vlny a třívrstvou minerální omítkou
5. NP - větraná dřevěná konstrukce s tepelnou izolací, obložení z velkoformátových eternitových desek

Okna - dřevěná, lakovaná, se speciálním zvukotěsných zasklením, ve 4. a 5. NP rámy s hliníkovým obložením; stahovací lamely na oknech a sluneční markýzy na terasách, zábradlí z pozinkovaných rour a profilů.

Topení - přípojka na dálkové topení, v obytných prostorách konvektory zapuštěné do podlah, v ložnicích radiátory; termostatické ventily, individuální odečítání spotřeby tepla.

Interiéry - nenosné příčky z homogenních sádrových tvárnic, povrch papírová tapeta s nátěrem; strop se sádrovou omítkou; podlaha lepené parkety z napařovaného bukového dřeva, podlahy a částečně stěny v kuchyni, WC a koupelně z keramických dlaždic; dveře z lakované dřevotřísky s kovovými zárubněmi; podlaha teras cementové dlaždice resp. potěr; schodiště s prefabrikovanými ocelovými stupni, prosklená výtahová šachta.
0 komentářů
přidat komentář

Více staveb od Jiří Oplatek