Rodinný dům v Kunraticích

Rodinný dům v Kunraticích
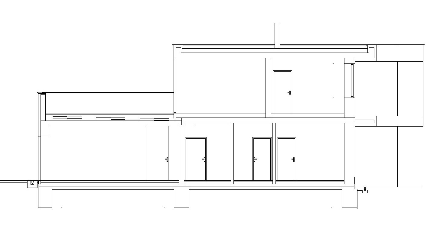
Dům ve stávající vilové čtvrti v Kunraticích v Praze. Zahrada sice jižní, ale přímo do ulice. Jak zajistit soukromí i slunce zároveň? Navrhujeme diagonální ustupující systém místností, který umožňuje jižní zahradu se světlem po celý den s obytnou terasou, zároveň však s průhledem do severní zahrady za domem. Vzniká výrazná šikmá osa domu. Architektura se vytvořila sama - tímto principem. Samotná forma postačuje a umožňuje použití už jen jednoduchých materiálů – bílé omítky, hliníkových oken a betonových venkovních teras. Fasáda na sever k jezírku je tvořena obrázky čtvercových oken různých velikostí dle funkce místnosti. Dům je zapuštěn a mírně od komunikace oddálen. Dětské pokoje v patře mají rozlehlou jižní terasu.
16 komentářů
přidat komentář
Předmět
Autor
Datum
ach jo :(
Kroutilová Jana
24.05.12 12:06
...
vga
24.05.12 05:59
:)
macin
24.05.12 07:36
???
presso
24.05.12 08:10
strašné
PetrJ
24.05.12 09:40
zobrazit všechny komentáře

Více staveb od Architektura s.r.o.