Rodinný dům v Dřevíči

Rodinný dům v Dřevíči
Domek, který právě přistává
Navržený domek je situován do předměstí malého města, do Dřevíče u Hronova při hranicích s Polskem. Postup přípravy a realizace stavby pro mladého investora s omezenými finančními možnostmi sebou přinesl zvláštní vstřícnost stavebníka pro soudobé architektonické pojetí a také dost obtížné povolovací řízení.
Před začátkem prací na návrhu domku, ukázal autor investorovi dnes již legendární knížku F. Kobosila a S. Koláčka Rodinné domky v zahraničí. Realizace rodinných domů z šedesátých let investora zaujaly natolik, že začal vyžadovat řešení, které by bylo současné a které by nebylo v duchu všeobecně rozšířené historizující konvence. Knížka, možná v některých knihovnách založená a nebo již i dokonce z nich vyřazená, usnadnila lepší komunikaci mezi autorem a investorem a především dala základ důvěře investora v architekta. Bylo možné začít hledat cestu k výsledku, prezentujícímu současné mladé lidi a jejich životní styl: jednoduchý, přímočarý a dynamický. O jakého investora jde je zřejmé již z velikostních parametrů stavby. Jsou dány finančními možnostmi minimálních úspor daných stavebním spořením.
Prostředí stavby svým uspořádáním nenabízí mnoho podnětů. V dnešní době již podněty v okolí stavby není zapotřebí hledat. Ostatně, dají se právě zde ve Dřevíči nějaké najít? Strmá cesta ke staveništi by mohla stejně dobře vést k horské salaši. Okolní rozptýlená zástavba nemá vlastní tvář. Souhrn všeho nabízí ideální příležitost zůstat sám sebou. Jak pro architekta, tak pro stavebníka i pro dům samotný.
Dům je zasazen do svahu malého údolí dost dramaticky. Vzhledem ke své velikosti je míra agresivity jeho zásahu do prostředí přiměřená. Stavba si pouze vybírá adekvátní právo na svou přirozenou autonomii. Vybrání prvního podlaží pro přístřešek na auto je základním prvkem řešení. Příchozí má na první pohled pocit jako by se stavba vznášela nad terénem a nebo, spíše ještě lépe, jako by přistávala na úbočí svahu. Snad právě pocit možné kolize "přistávající" stavby a úbočí svahu nejlépe vypovídá o současné atmosféře doby. Není moc ohleduplná a pokorná. Ale právě proto nemá smysl žít v iluzích , že je současnost jiná - šetrná, romantická a "kontextuální", a případně je ještě vytvářet a rozšiřovat.
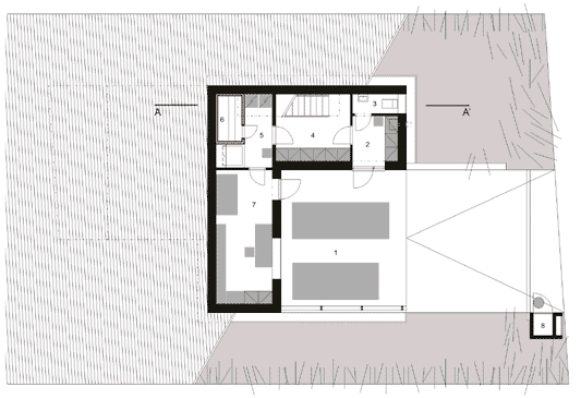
Vstup do domku je v přízemí, z místa přístřešku pro auto. Obytné místnosti jsou v patře. Tvoří je obytný prostor se zakomponovaným schodištěm a s kubusem kuchyně, dále ložnice, pokoje a koupelna. Obytná místnost je celá otevřená na do svahu zaříznutou venkovní terasu. Právě terasa je opravdovým airportem stavby. Místem kontaktu domku s terénem.
David Chmelař navrhl dům razantní a dramatický. Dal mu jednoduchá pravidla. Půdorys ve tvaru obdélníku. Do oken vložil jednoduchý systém. Poměry součtu okenních otvorů na severním, východním a západním průčelí odpovídají velikosti otvorů na jižní fasádě. Půdorysem domu prochází osa. Svým půdorysným založením do obdélníku a vybráním hmoty je výzvou k odmítnutí pocitu přehnané stabilnosti. Jeho dramatický plášť může nabídnout v nejistotě každé doby dostatek řádu.
Je velké množství lidí, kteří chtějí mít dům takový, který již někde viděli. Zřejmě mají pocit, že se přiblíží něčemu, co je spojené s obecně rozšířeným ideálem a vyhnou se současně riziku, nést investorskou odpovědnost za spojení s méně obvyklými věcmi. Je poměrně jednoduché při zapnutí televizního přijímače sledovat v mnohadílném seriálu hlavního hrdinu v jeho vile a domnívat se, že vybudováním repliky této stavby se divák stane součástí hrdinova úspěchu. Domek ve Dřevíči se svým investorem do podobné skupiny nepatří. Hledat vlastní reálné hodnoty je výrazně obtížnější. Každému ale mohou ušetřit ztrátu řady iluzí.
Alexandr Skalický, viz Stavba 3/2000
0 komentářů
přidat komentář

Více staveb od Chmelař architekti