Požární stanice Götzis

Feuerwehrhaus Götzis

Požární stanice Götzis
Spolupráce:Christian Schmölz, Simon Metzler, Michael Abt, Julia Grund
Adresa: Montlingerstraße 2, Götzis, Rakousko
Investor:Marktgemeinde Götzis
Soutěž:2010
Projekt:2010-14
Realizace:2012-14
Užitná plocha:2700 m2
Zastavěná plocha:1662 m2
Plocha pozemku:4683 m2
Obestavěný prostor:13300 m3
Náklady:5 000 000 Euro


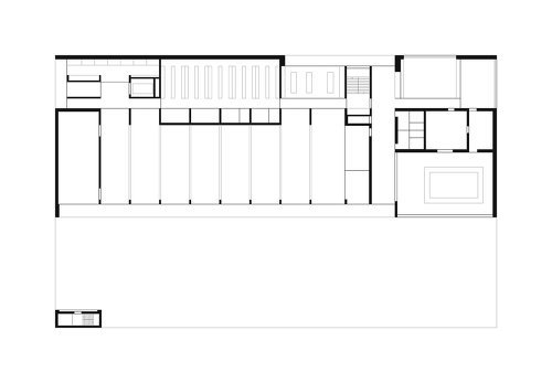
Původní soutěžní návrh byl situován na pozemku, který z jižní strany lemovala velká tržnice a severní okraj tvořily malé rodinné domy. Po změně pozemku musel být projekt upraven. Budova požární zbrojnice reaguje na své nové okolí klidnou formou. Snížením počtu otvorů přitom vznikla velmi dynamická fasáda. Funkční uspořádání je rozděleno do dvou částí: administrativně-výukovou a garážově-dílenskou. Obě tyto části jsou propojené vstupní halou umístěnou přes celou hloubku objektu. Foyer rovněž spojuje hlavní vstup s nouzovým východem. Všechny hlavní funkce jsou přehledně uspořádány na jednom podlaží. Krátké chodby a přímá propojení zaručují hospodárný provoz stavby jako i nejefektivnější fungování v případě vyhlášení požárního poplachu. Dům je postaven z masivní betonové konstrukce. Administrativní část společně s výukovým centrem je vybavena dřevěnými interiéry. Garáže a dílny jsou postaveny z masivní a trvanlivé kombinace betonu a oceli. Okna v administrativně-výukové části jsou opatřeny předsazenou vrstvou z děrované černého plechu sloužícího jako ochrana před sluncem a také ke scelení jednotného vzhledu fasády.
Cukrowicz Nachbaur
0 komentářů
přidat komentář

Více staveb od cukrowicz.nachbaur architekten