Padel Powers Smíchov

Padel Powers Smíchov
Adresa: Křížová 6, Smíchov, Praha, Česká republika
Investor:Padel Powers s.r.o.
Projekt:2023
Realizace:2025


Spolupráce: Tomáš Lebeda, Jana Bartalošová, Albert Machek
Dodavatel: AMO, spol. s r.o.
Foto: Martin Štrouf
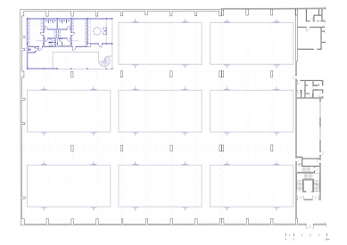
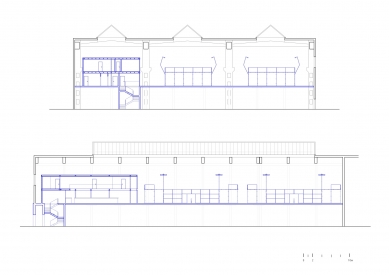
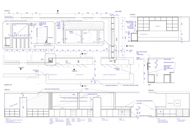
Návrh rozsáhlé vestavby sportovního zázemí a padelových kurtů vychází z atmosféry stávajícího prostředí, kterým je prefabrikovaná výrobní hala ze sedmdesátých let 20. století. Tato prostorově velkolepá stavba je sestavena z racionálních konstrukcí s přiznanou materialitou a z ní odvozenou barevností. Prim hraje beton a ocelové prvky v modrozelené a žluté barvě. Cílem projektu je zachovat a podpořit atmosféru autentické průmyslové stavby.
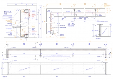
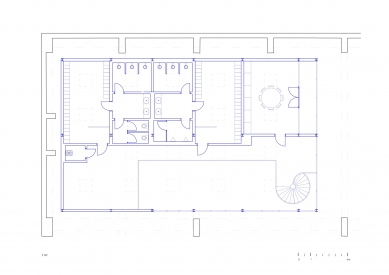
Návrh do modulů stávající konstrukce umisťuje 8 kurtů a jednu dvoupodlažní vestavbu zázemí, která se půdorysně rovná velikosti padelového kurtu (10x20 m). Návrh vestavby je generován stejnou logikou jako existující stavba - tedy v jejím duchu. Navrhujeme modulární ocelovou konstrukci s přiznanými spoji umístěnou na nové železobetonové desce s kletovaným povrchem. Tuto modulární konstrukci vyplňujeme plnými nebo transparentními plochami, tj. cembritovými deskami nebo kalenými skly v eloxovaných profilech. I ostatní použité materiály jsou přiznaně průmyslově zpracované - podhled je tvořen heraklithem, pro akustickou pohodu, bar je ze sklolaminátu a terrazza, nábytek z překližky. Atmosféru dotváří původní - repasované průmyslové osvětlení, pozinkované vnitřní dveře, pravoúhlé betonové schodiště se zrcadlem a vřetenové ocelové schodiště. Pro méně pozorné návštěvníky se mnohde stírá hranice mezi novým a původním.

Konstrukce koncipujeme v duchu existujícího prostředí jako „retromyšlení“. Veškeré zásahy jsou modulární, prefabrikované, v originální materialitě a barevnosti průmyslově zpracovaných materiálů a výrobků. Nosná konstrukce zázemí je tvořena modulárním ocelovým skeletem z HEB/IPE/UPE profilů. Svislé konstrukce jsou tvořeny sloupy z HEB profilů v modulu 6 m v podélném směru a 3 m v příčném směru. Vodorovné konstrukce jsou tvořeny nosníky IPE ve středu konstrukce a UPE v jejích krajích. Povrchem je požární nátěr v základové šedé barvě. Spoje jsou přiznané, tvořené pomocí pozinkovaných prvků. Skelet je vyplněn konstrukcemi se suchou skladbou, plnými a transparentními plochami. Plné výplně tvoří hliníkový rošt zaklopený cementovláknitými deskami bez povrchové úpravy, s přiznaným kotvením pomocí vrutů.
Transparentní plochy jsou tvořeny kalenými skly, vloženými do eloxovaných hliníkových lišt. Dveře jsou pozinkovány a lakovány bezbarvým matným lakem. Podlaha je v přízemí z kletovaného betonu ošetřeného matným lakem, v patře z marmolea. Podhledy jsou z herakltihu, bar ze sklolaminátu, pracovní deska z terazza. Nábytek na míru je ze zalakované překližky. Židle jsou tonky z druhé ruky, svítidla jsou původní repasovaná, doplněná a porcelánové objímky se žárovkami. Kurty jsou tvořeny systémovým ocelovým nosným skeletem v šedé barvě, doplněny o samonosné polykarbonátové transparentní plochy a osvětlení. Povrch je tvořen modrou umělou trávou s pískovým vsypem.
Apostrof architekti
0 komentářů
přidat komentář