Kafé Ořech

Kafé Ořech
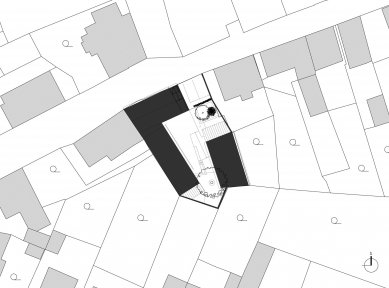
Areál kavárny Ořech v ulici Poříčská vznikl na místě pobořeného dřevěného domku při ulici, a zděného hospodářského stavení s kurníkem. Původní stodola byla v dobrém stavu.
Cílem bylo navrhnout kavárnu s penzionem a malým sálem ve stodole, kde vznikne malé společenské centrum.
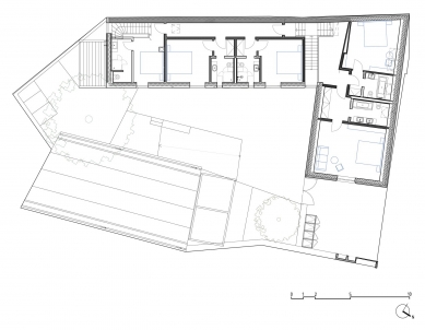
Koncepce vychází z místního fragmentárního urbanismu. Novostavby jsme postavili na půdorysu původních stavení, přitom jsme prohodili jejich materiálové pojetí – na místě dřevěného domku umisťujeme zděný jednopodlažní domek v přízemí s kavárnou, se sedlovou střechou s obytným podkrovím se dvěma pokojíky. Přiznané lícové zdivo je z recyklovaných cihel z původní hospodářské části. Strop je z masivních dubových trámů, uvnitř pracujeme i s dalšími surovými materiály jako neošetřená ocel barového pultu… Na fasádě je hrubá omítka kontrastní s hladkými sešikmenými ostěními otvorů. Vzniká tak archetypálně jednoduchá hmota.
Na místě zděného hospodářského stavení jsme naopak umístili podsklepenou dřevostavbu vizuálně lehčí dvoupodlažní budovy zázemí a ubytování.
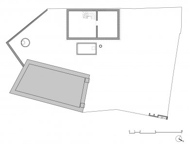
Stodolu jsme tvarově očistili a prorazili jsme nové velké otvory vstupu ze dvora a výstupu na terasu. Zvenčí je stodola nově omítnuta, zevnitř jsme její stěny naopak obnažili na cihelnou strukturu zdiva.
Uprostřed je dvorek z velké části nově zpevněný a dlážděný žulovými kostkami získanými z okolních přestaveb. Jméno a charakter dává prostoru dal vzrostlý stávající ořešák poskytující v létě příjemný stín. Dvůr slouží jak návštěvníkům společenských akcí ve stodole, tak návštěvníkům kavárny – ostatně se zde tyto skupiny a funkce zdárně mísí a podporují. Dvůr je propojen s ulicí průchodem, kterým lze projít i v případě, že je kavárna zavřena – průchod vizuálně váže na chodník v kolmé ulici a je z něj vstup do prostoru kavárny.
ARCHiGROUP
0 komentářů
přidat komentář

Více staveb od Archigroup