Interiér BYTU 3+1 v Brně, CHICAGO

Interiér BYTU 3+1 v Brně, CHICAGO
Adresa: Renneská, Štýřice, Brno, Česká republika
Projekt:2012-13
Realizace:2013-15
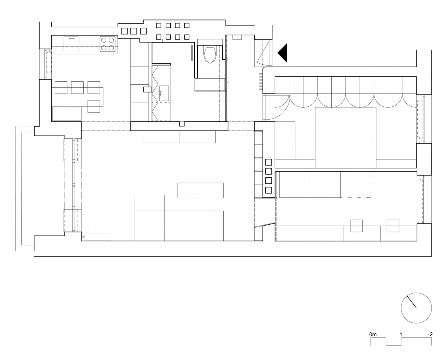
Užitná plocha:71 m2




koncepce

prostor pro rodinu s dětmi — hravost — vtip — barva — radost

Prostor bytu před rekonstrukcí člověka docela skličoval, byl rozdělen na malé tmavé místnosti se spoustou chodeb a dveří, jejichž otevíravá křídla bránila volnému pohybu. Detaily připomínaly doby, kdy se stavělo svépomocí. Díky tomu se pro mě stala práce na tomto interiéru příjemnou změnou, mohla jsem pracovat téměř bezohledně k původním materiálům a dispozici. Investor směřoval k velkorysému řešení, při kterém člověk často narazí na limity finanční a také právní či správní...výsledek je kompromisem. Vytvořit velkorysý byt pro rodinu se 2 dětmi na 66 m² není úplně jednoduché. Při návrhu dispozice jsem musela vyloučit vše zbytečné, sloučit slučitelné...šetřit prostorem i barvami a materiály. Obavy z přílišné jednoduchosti až sterility interiéru zahnal investor polštáři a oranžovým psíkem, kterého jako první z dekorací postavil na stráž útulnosti bytu. Po narození syna barvy a hravost obsadily byt definitivně. S napětím očekáváme, jak byt zvládne navržený počet dětí.
0 komentářů
přidat komentář

Více staveb od 2x13