Dům s barevnými dveřmi

Dům s barevnými dveřmi
Adresa: Alšovice 789/4, Pěnčín, Česká republika
Realizace:2024
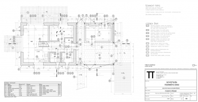
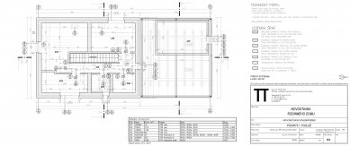
Užitná plocha:177 m2
Zastavěná plocha:133 m2
Obestavěný prostor:908 m3


Spolupráce:
Ing. Filip Chmel (statika)
Ing. Zdeňka Čiháková (zti)
Martin Jindrák (vytápění)
Josef Fanta (pbř)
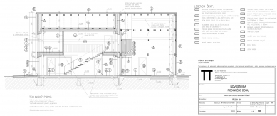
Novostavba rodinného domu jednoduché archetypální hmoty. Stavba svým vzhledem navazuje na historické stavby v okolí. Objekt je svou delší hranou položený na vrstevnici, rovnoběžně s místní komunikací. Dům je usazen ve spodní části pozemku investora tak, aby větší plocha zahrady zůstala pobytová a byla cloněná pohledům z ulice. Cílem bylo vytvořit soudobou novostavbu respektující historický kontext v poměrně neharmonickém prostředí okrajové části obce. Objekt splňuje základní principy tradičního stavitelství, má např.: sedlovou střechu, obdélný půdorys, světlé omítky, keramickou červenou krytinu, barevné šedobéžové výplně otvorů či dřevěné bednění fasády. To je zformováno do tesařské konstrukce se svislým modřínovým obkladem. Výrazným prvek jsou barevné seníkové dveře a kontrast mezi zděnou a dřevěnou částí domu. Jedná se o přízemní dům s obytným podkrovím. Stavba je členěna na dvě odlišné části - zděná část s obytným charakterem o velikosti bytu 5+kk a část dřevěná s tesařskou konstrukcí jako stání pro automobil či veranda s vlastní vloženou zděnou keramickou dílnou a seníkovou půdou. Celý objekt je protknut průhledovými osami venku - uvnitř - venku, exteriér a interiér je propojen velkými okny. Středobodem interiéru a hlavním prostorem je obytná místnost s centrálním jednoramenným schodištěm procházejícím skrz halu do podkroví.
TT
0 komentářů
přidat komentář