The Expansion of the Center for Modern Art

The Calouste Gulbenkian Foundation in Lisbon

The Expansion of the Center for Modern Art
Architect: Kengo Kuma, Rita Topa
Coauthor: OODA , VDLA

Collaboration

:
Benjamin Weil, Ana Botella, Andrea Toccolini, Fabio Bellini, Mohammad Eimar
Address: Rua Marquês de Fronteira 2, Lisboa, Portugal
Investor:Fundação Calouste Gulbenkian
Contest:2019
Completion:21.9.2024
Area:17174 m2
Built Up Area:5144 m2
Price:58 000 000 Euro


Author of the original building: Leslie Martin, Ivor Richards, 1983
Structural solution: Buro Happold, Quadrante
The Armenian merchant Calouste Sarkis Gulbenkian amassed a fabulous fortune through oil trading, from which he generously supported charitable activities and acquired an extensive art collection (during his lifetime he purchased more than 6,400 items). The tumultuous history of the 20th century swept Gulbenkian from Istanbul through Cairo, London, and Paris to Lisbon, where he died in 1955 at the age of 86 and bequeathed a large part of his fortune, including artworks, to a foundation bearing his name. The newly established foundation settled in a brutalist building designed between 1957-68 by a trio of Lisbon architects (Pedro Cid, José Alberto Pessoa, Ruy Jervis d’Athouguia), while the extensive park was shaped by the duo of landscape architects Antonio Viana Barreto and Gonçalo Ribeiro Telles. Today, the Gulbenkian Foundation has over 12,000 works from Portuguese and international creators in its deposits, with approximately 1,000 artworks on display in its permanent exhibitions. For the expanding collections and new activities, a new exhibition building, CAM (Centro de Arte Moderna, 1983), focused on modern art, was added twenty years later in the southern part of the garden. However, even this high-tech structure designed by British architect Leslie Martin began to prove insufficient after thirty years of operation, leading to a competition in 2019, won by Japanese architect Kengo Kuma in collaboration with the Portuguese studio OODA and Lebanese landscape architect Vladimir Djurovic, who envisioned the new southern entrance to the museum garden. Part of the modifications also included lowering the fence around the garden, allowing for free passage through the area. Lisbon residents can shorten their route this way or, conversely, use the meandering corners to spend their free time.
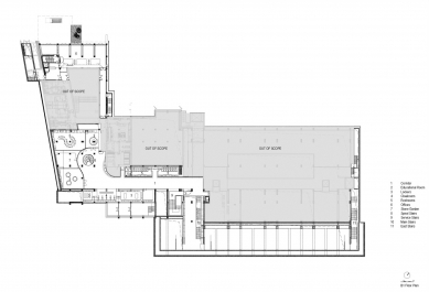
Kuma's design is based on the Japanese typology of “engawa,” representing a covered porch. In Japanese architecture, this transitional space between the interior and exterior is slightly elevated above the ground and seamlessly connects the house with nature. The new exhibition and service spaces were placed beneath the existing 80s structure to avoid taking away space from the garden. On the southern side, a dramatically curved canopy resembling a textile curtain was added. The steel structure is covered on the top with white handmade ceramic tiles and lined underneath with naturally colored ash boards. The static design of the 107 m long and 15 m wide curved roof was entrusted to the engineering firms Buro Happold and Quadrante. The feeling of lightness as well as structural certainty was achieved through two rows of slender steel columns shaped like the letter A. A long promenade with varying ceiling heights simultaneously protects against rain or direct sunlight, while allowing the wind to flow freely through the addition. Kuma's intervention strengthens the relationship between the existing building and the adjacent garden. Visitors can stay under the roof while simultaneously experiencing direct contact with nature. Minimalist interventions in the existing structure have allowed the museum to open up even further. In the center of the layout, a new atrium with a spiral staircase has been created. The entrance level is generously connected to the basement with a hall lined with white expanded metal. The slightly recessed exhibition halls have windows overlooking the covered arcade and continue further into the garden.
The English translation is powered by AI tool. Switch to Czech to view the original text source.
0 comments
add comment

more buildings from Kengo Kuma, Rita Topa