Small House on a Corner Lot

Small House on a Corner Lot
Address: 1 Chome-42-12 Nakano, Tokyo, Japan
Completion:2024
Area:60 m2
Site Area:30 m2


Photography: Katsumasa Tanaka
Structural Engineering: Ryunosuke Funayama
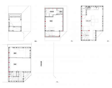
It is a three-story wooden house built on a limited plot of land of only 9 tsubo (approx. 30 sq. m). As it is on a corner lot, if the fire resistance performance is met, the building coverage ratio can be 80%, and we were able to secure more floor space than we expected.
In a semi-fire-resistant area, we chose a semi-fire-proof building, which was introduced in the revised Building Standards Act of 2019, rather than a semi-fire-resistant building. By making some of the columns and beams 120cm wide or more, we were able to partially expose the wooden structure while still ensuring fire resistance. As a result, we were able to make the ceiling higher by placing it on the beams, and despite the steep slope, we were just able to secure the necessary floor area.
As for the shape, we were able to create a small rooftop terrace by using the sky exposure ratio for the slope of the road on the south side. As the shape of the north side is determined by the slope of 1:1.25, the key point was how to make full use of the sloped wall.
After much consideration, we decided to place the bathroom, which is used relatively infrequently and has a lot of storage space, on the north side of the third floor. The slanted area will be used for storage. The bathroom was designed to be as minimal as possible, with a bathtub slid into the space between the slanted walls that approach from two directions.
Taking advantage of the long vertical space, we installed a ventilation window on the rooftop, allowing the entire building to ventilate using gravity like a wind tower, creating a house where you can always feel the breeze. We planted trees above the eaves and raised the ground floor garden, which was difficult to do due to its area, to the second floor, allowing you to enjoy a small amount of greenery from inside the house.
KOMINORU Design
0 comments
add comment