Clinic Prague Fertility Center

Clinic Prague Fertility Center
Graphic Elements:DIP.gd
Address: Sokolovská 810/304, Vyšehrad, Prague, Czech Republic
Investor:Prague Fertility Centre s.r.o.
Project:2019
Completion:2020


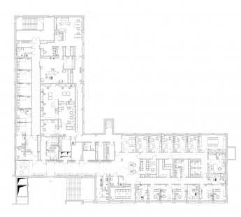
Interior of the Prague Fertility Centre
The interior of the clinic was designed with maximum sensitivity and the understanding that clients often undergo assisted reproduction repeatedly, and even so, it is not possible to guarantee the expected outcome. We aimed to create a pleasant interior that distances itself from the traditional healthcare facility atmosphere. We primarily worked with light, which in the project symbolizes hope and contrasts with the challenging process that clients go through during infertility treatment.
We received a very brief brief from the client. We were to design an intimate space and use colors that reflect the clinic's logo. The materials were chosen to ensure cleanliness corresponding to a healthcare facility. We could not change the layout to ensure the operation; however, we managed to adapt some structural elements to our intention and brighten an otherwise dark interior.
Key for us was to create a space that leaves a positive impression. For this reason, we chose more pronounced color elements that deviate from the traditional concept of a healthcare facility. We used orange (the color of the clinic's logo) as a navigational marker. This is most clearly seen on the doors. The doors of the rooms designated for clients are orange, while the rooms for staff are white.
Clients’ journey through the clinic begins in the entrance hall. We divided the original, excessively long escape corridor into three zones. The entrance area with the clinic's logo and a flower wall, an area with a children's corner before entering the intervention section, and the main waiting area with the reception desk.
The main element of the interior is ambient lighting and the use of curtains, which add the necessary softness to the interior while providing enough privacy and a sense of security. Also noteworthy are the upholstered sofas, which are separated by semi-transparent partitions. The sofas create smaller private areas that are so necessary for the given space.
Behind the reception desk, administrative spaces are accessible from one side, and from the other side, there are nurses' stations and clinics. In the corridors, we worked with an optical trick and placed thin wooden profiles on the walls, which pleasantly segments the surface of the wall from a frontal view. The element of light comes into play here again, as we managed to brighten the originally dark central corridor with daylight that penetrates through semi-transparent glass partitions.
The play of colors is particularly visible in the clinics. They are tuned to tones of yellow, blue, and pink. Their furnishings are purposefully kept entirely minimalist, as they stem from strict hygiene requirements for the space. The color scheme in the interior is complemented by the texture of individual surfaces. We chose visually pleasant acoustic ceilings, ceramic tiles softened by a bevel, glass partitions instead of drywall, and a floor made of natural linoleum that also has a pleasant scent. We also softened the windows with curtains.
We applied a similar approach when designing offices and rooms. In the rooms, clients can use an armchair and a comfortable bed complemented by a shelving unit integrated into the cladding, which mainly serves to protect the walls during bed handling. From the room's perspective, the wallpaper featuring a peaceful misty landscape distinctly applies across the entire area of the open door. The bed area transitions into the core of the whole clinic, namely the intervention room and laboratory support. In the intervention room, we used a striking yellow color on the floor. This color brings an uplifting impulse to the sterile room environment.
Finally, it is essential to mention the importance of the navigation elements from the studio DIP.GD, which are an integral part of the entire design and contribute to the comfortable orientation of clients within the clinic space.
Author's report
The English translation is powered by AI tool. Switch to Czech to view the original text source.
0 comments
add comment

more buildings from SKARCH Andrle architekti