House & Atelier Bow-Wow

House & Atelier Bow-Wow
Address: 8-79 Suga-cho, Shinjuku-ku, Tokyo, Japan
Completion:2005
Area:211 m2
Built Up Area:60 m2
Site Area:109 m2


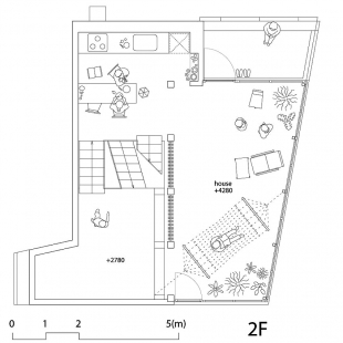
As it is hard to run 3 places including the university laboratory, we were looking for a site for our house and atelier and ‘a flag shape site’ was up for nomination. A flag shape site is surrounded by buildings and only connected to the road by a narrow strip of land. It is therefore hard to plan or construct on and it is cheaper.
It is a chance to utilize our past experience having changed challenging conditions into positive characteristics of houses. Aiming not to separate the house and the atelier portion, we reached the composition with lower 2 floors for the atelier and upper 2 floors for the house connected with a staircase, the landing of which can be a split-level house itself after studying the conditions. The areas of the stair landings vary from 3 to 10 sqm, and the styles of the stairs also vary to give each space a different degree of privacy.
To fit the exterior wall inclined by regulations, the interior columns of the 1st and the 3rd floor also incline, and affect the behavior of the people inside. The unexpected forms of spaces inspire our imagination of use. We also dug a well and use the water for radiant cooling and heating. The well water pumped up to the roof streams down on surface of the external wall, cooling the wall by vaporization in the summer. The external wall is covered with granule-faced asphalt to hold the water. It is fun to think of the building as a massive rock sweating, with a dragon like internal water vein, which can be glimpsed between the houses. Vegetable will be planted at the top of the “rock”, and a tall tree and a bench will be at the “flagpole” approach. Our occupation of the place to imprint our memory has just begun.
Atelier Bow-Wow
0 comments
add comment

more buildings from Atelier Bow-Wow