Children's Nursery Jasličkovo

Children's Nursery Jasličkovo
Address: Gucmanova 679/1, Leopoldov, Slovakia
Investor:Mesto Leopoldov
Project:2018-19
Completion:2023
Area:235 m2
Built Up Area:193 m2
Site Area:806 m2
Built Up Space:1255 m3
Price:563 616 Euro


Verification study: 2021 Architects (2018)
Collaboration: Michal Pacher, Viera Bolebruchová
Statics: Pavol Drha
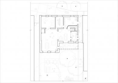
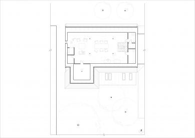
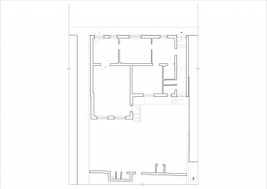
Simple reconstruction of a house in a row development of a rural type into a children's nursery. If we had to characterize it with one bon mot, it is an example of the "power of moderation." We did not aim to change the original architecture; on the contrary, through almost acupuncture-like interventions and details, we aimed to incorporate the building into the "contemporary architecture" and the neighborhood of the new town hall. The goal was to design a nursery where we would like to place our children. The result is a preschool facility that does not compromise on children's taste but seeks to shape it. Everything is just as it should be; the layout is clear and logical, materials are articulated and functional. The interior is well-lit, with an emphasis on a positive atmosphere achieved through the harmony of shapes, details, and functionality.
Architects BKPŠ / Bakyta architects
The English translation is powered by AI tool. Switch to Czech to view the original text source.
0 comments
add comment

more buildings from Architekti BKPŠ Bakyta Architekti