Chimney House

Chimney House
Architect: Atelier DAU
Tým:Emma Rees-Raaijmakers, Suzanne Green, Monica Vogel-Santos
Address: Redfern, Sydney, Australia
Completion:2018
Area:280 m2
Site Area:232 m2


Photography: Tom Ferguson
Conceived as a sculptural entity, Chimney House is as much a project for the client as it is a shared experience for the neighbourhood.
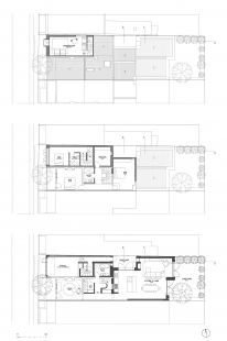
A vacant block of land adjacent a heritage-listed inner city terrace offered an opportunity to extend the existing home and create a fluid gallery-like interior for the client’s extensive art collection. The ‘jigsawing’ of two dwellings into one volume on a compact footprint enabled on-site parking with a self-contained apartment aloft, all concealed behind a custom perforated bronze façade.
This infill screen was designed as a flat graphic, allowing natural light to enter whilst maintaining privacy within. In tandem with the terrace’s heritage façade, it reads tonally as one consistent surface and was designed to complement the street’s terraced row. The sculptural form of the roof was carefully modelled, ensuring a respectful and elegant connection. Referencing its namesake, upper level windows frame the clay rooftop chimneys of the original terrace and those of its neighbours, co-habiting with the inclusion of a contemporary chimney above a new central fireplace.
At the property’s rear, its form retains and responds to the pigeon-paired elevations. Taking advantage of the double-width site, the intertwined planning disrupts the traditional linear spatial sequencing of a terrace, introducing an opportunity to insert a generously wide courtyard to capture natural light via oversized glass pivot doors framing two paved areas.
Within, a curved central stair hall replaces an impractical steep stair, bringing an unexpected scale and organic theatre to the interiors. A bold diagonal graphic floor graphic is carried through several rooms and unites them with a continuous pattern, granting the illusion of expanding space (a motif subtly integrated upon the garage door). The house, while compact, feels surprisingly spacious, delivering the client effortless living.
0 comments
add comment