Vila v Pardubicích

Vila v Pardubicích
V lokalitě, která prochází postupnou zástavbou a zatím nemá ustálenou identitu, vznikl rodinný dům o ploše 232 m². Parcela byla původně součástí zahrádkářské kolonie, jejíž rozvolněná improvizovaná struktura se promítla do návrhu: dům je kompozicí několika menších objemů a meziprostorů seskládaných do jednoho celku.
Klienti přišli se zadáním vily inspirované Holandskem – nikoliv doslovně, spíš atmosférou: pocitem útulnosti, kompaktností, vztahem k materiálu. Vzali jsme to jako výzvu. Rozhodli jsme se využít motiv fragmentace: menší hmoty poskládané do celku, které odkazují na někdejší drobnou strukturu zahradních staveb. Vznikl jednoduchý, ale silný princip: pozitivní objemy, dutiny a meziprostory.

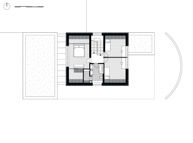
Dům má rozdílné chování vůči ulici a zahradě. Ze severu je, i kvůli blízkému železničnímu koridoru vědomě uzavřený, skoro zdrženlivý. Jakmile však člověk projde úzkou průrvou mezi dvěma hmotami, dům se začne otevírat. Prvním gestem je hala se střešním světlíkem, který zvýrazňuje prostor mezi objemy a přináší do nitra domu měkké, proměnlivé světlo. Na halu přirozeně navazuje obývací pokoj, vzniklý jako "dutina" mezi hlavními hmotami domu. Panoramatické okno otevírá interiér směrem k zahradě a stírá hranici mezi vnitřním a vnějším světem. Dominantou místnosti je krbové těleso a knihovna s televizí – pevné body kolem, kterých se odehrává každodennost. Na obytný prostor navazuje kuchyně a schodiště do patra. Klienti pracují z domova. Důležitou součástí zadání bylo mít v přízemí dvě pracovny, ideálně se soukromím výhledem do zahrady. Součástí zadání bylo i vědomé "ukrytí" kuchyně mimo hlavní obytný prostor. V přízemí se dále nacházejí, technická místnost a koupelna skrytá v knihovní stěně. V patře jsou umístěny tři ložnice a hlavní koupelna.

Materiálovou jednotu zajišťuje cihelný pásek užitý na fasádách i v interiéru. Umožňuje plynulé propojení jednotlivých částí domu a podporuje čitelnost architektonického konceptu.
Důležitou součástí návrhu je práce s pohybem a uspořádáním prostoru: návaznosti místností, průhledy a přirozené vedení uživatele domem. Cílem bylo vytvořit stavbu, která do prostředí zapadá, nevyčnívá a současně přispívá k formování identity vznikající čtvrti.
Výsledkem je dům s klidným, srozumitelným výrazem, založený na jasném konceptu a dispozičním uspořádání.
0 komentářů
přidat komentář