Rekonstrukce prvorepublikového bytu v Brně

Rekonstrukce prvorepublikového bytu v Brně
Autor: AOSI
Team:Ivo Stejskal, Vít Šarišský, Natálie Laníková, Suzanne Pietroszová
Technické konzultace: Zdeněk Šuchma
Realizace:2025


Truhlářské výrobky: DENA interier
Zrcadlová stěna: Sklo Rosprim
Obklady: Archtiles
Realizace: Petr Čejka
Rekonstrukce prvorepublikového bytu v Brně citlivě obnovuje původní atmosféru s důrazem na historické detaily a kvalitní materiály nových prvků. Přehodnocení dispozice nabízí velkorysý obytný prostor, vestavěné vybavení inspirované japonskou estetikou zajišťuje variabilitu a nadčasovost interiéru.

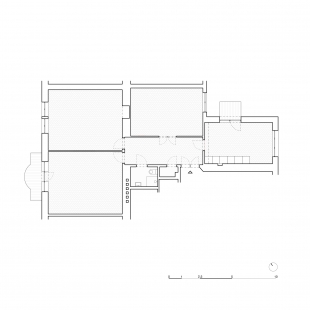
Bytový dům ve kterém se byt nachází pochází z dvacátých let dvacátého století. Prvorepublikový charakter bytu je definován velkorysými místnostmi s vysokou světlou výškou i spoustou detailů z kvalitních materiálů. Ne všechny se však dochovaly vlivem nevhodných rekonstrukcí. Důležitým aspektem návrhu je obnovení původní atmosféry s moderními prvky. Obnovení spočívá ve výměně plastových oken za dřevěné kastlové, repasování zdobených zárubní otvorů a navrácení dřevěných parket, které prostupují celým bytem bez prahů.

Velkým tématem a největším zásahem je přehodnocení dispozičního rozložení, kde největší místnosti směřují na západ do ulice, zatímco kuchyně a menší pokoj směřují na východ do klidného vnitrobloku. Přeorganizování kuchyně na druhou stranu bytu spolu s vybouráním otvoru, který propojuje druhou velkou místnost, vytváří velký obytný prostor se západním odpoledním sluncem. V druhé části bytu jsou využity dva menší pokoje intimněji díky orientaci do klidného vnitrobloku s ranním sluncem.

Cílem návrhu bylo vytvořit prostor, který je modifikovatelný v čase. Veškeré vestavěné prvky jsou proto navrženy v maximální míře neutrálně, tak aby umožnily vybavení místností jakkoliv výrazným mobiliářem, který se může měnit a stále bude ladit ke svému okolí. Vestavěný nábytek je dřevěný ve stejném odstínu vlysové podlahy a je doplněn vestavěnými plechovými prvky z broušeného nerezu, který nenápadně odráží své okolí.

Inspiraci vestavěných prvků architekti hledali v japonské estetice, kde má pravidelnost, rastr a opakování prvků duchovní rozměr. Vycházejí z představy o řádu, rovnováze a cykličnosti přírody. Rytmus opakujících se polí a segmentů symbolizuje harmonii mezi člověkem a okolím, klid mysli a přijetí neustálého plynutí času. Výrazným lineárním prvkem v chodbě je barevné neonové světlo, které zase odráží charakter nočních ulic Tokia.

Stávající koupelna se záchodem v původním rozvržení neodpovídaly požadovanému rozměru, proto je architekti navrhli rozšířit do poměrně velkého prostoru chodby. Zrcadlová stěna opět odráží své okolí, neutralizuje využití prostoru chodby a iluzivně skrývá vložený objem koupelny.

V koupelně a na soklu barového pultu je použitý plastický obloukový obklad navazující na reliéf původních kanelovaných zárubní. Zelená barva obkladu kuchyňského ostrůvku je doplněna komplementární červenou barvou lineárního osvětlení jako jediného dominantního prvku v bytě.
3 komentáře
přidat komentář
Předmět
Autor
Datum
Dotaz - vyrobce neonoveho svetla
Marek
06.11.25 06:59
Osvětlení kuchyň
Linda Punčochářová
06.11.25 07:27
odpovědi
Ivo Stejskal
08.11.25 08:52
zobrazit všechny komentáře

Více staveb od AOSI