Rekonstrukce divadla Thalia

Rekonstrukce divadla Thalia
Spolupráce:Jan Vojtíšek
Adresa: Estrada das Laranjeiras 205, Lisabon, Portugalsko
Investor:Ministerstvo vzdělávání a vědy Portugalska
Projekt:2008
Realizace:2012
Užitná plocha:1600 m2
Náklady:2 700 000 Euro


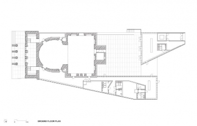
Hic Mores Hominum Castigantur. „Zde budou potrestány lidské skutky“: toto je latinský nápis na tympanonu nad hlavním vstupem do lisabonského divadla Thalia, které bylo kdysi honosnou budovou postavenou portugalským aristokratem (divadlo si nechal postavit ve 40. letech 19. století obchodník a filantrop Joaquim Pedro Quintela hrabě z Farrobo jako soukromé místo pro uvádění oper, divadelních představení a pořádání extravagantních večírků pro vlastní potěšení v zahradách vlastní paláce na okraji Lisabonu) a po požáru 9. září 1862 z něj zůstala pouhá ruina. Nyní se bývalé divadlo díky rekonstrukci a rozšíření opět proměnilo v místo pro pořádání výstav, koncertů a dalších kulturní akcí. Prvním krokem bylo restaurování fasády původního divadla s neoklasicistními prvky. Druhým úkolem bylo zpevnit ruiny zadní jevištní části, kterou nyní chrání výrazná obálka z terakotově zbarveného železobetonu, která svým tvarem připomíná původní divadlo. Vznikl tak rozlehlý víceúčelový prostor, který těží z kontrastu mezi novými homogenními betonovými plochami a různorodými cihelnými texturami historických ruin. Třetí etapou byla realizace dvou menší jednopodlažních pavilonů s kancelářemi a technickým zázemím, které jsou uspořádány po obvodu pozemku a směrem do ulice se obrací jednolitou tmavou prosklenou fasádou. Nově postavené křídlo vytváří v zadní části menší nádvoří, které pomáhá filtrovat ruch a shon z přilehlé ulice.
Barbas Lopes Arquitectos
0 komentářů
přidat komentář

Více staveb od Gonçalo Byrne
Barbas Lopes Arquitectos