 |
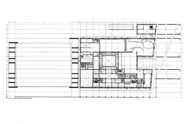
Původní účel portugalského pavilonu pro výstavu Expo '98 bylo jednak poskytnout prostory pro dočasnou výstavu, jednak měl sloužit jako vítací platforma významných zahraničních návštěv. Ačkoliv nebylo před zahájením výstavy jasné, co se s pavilonem po výstavě stane, dalo se tušit, že v něm bude sídlit některá ze státních institucí nebo úřadů. Tato skutečnost posloužila Sizovi jako argument pro návrh paláce s monumentální skladbou poplatnou Nové monumentalitě z roku 1943. Architektonický jazyk italské Tendenzy si Siza vyzkoušel již v návrhu Školící akademie učitelů v Setúbalu (1994). Portugalský pavilon vychází z předobrazu Palazzo dei Ricevimenti 'E 42 od Giuseppe Terragniho z roku 1938. To je očividné například na kratších kamenných fasádách. Siza rozvinul rytmus italských fasád s přívlastkem tektonického modernismu Oscara Niemeyera, jehož Cavanelas House z roku 1954 má podobnou velkorozponovou střechu ve tvaru řetězovky. V Sizově typovém přesunutí jsme svědky toho, jak Terragniho palácová fasáda je oporou pro železobetonovou střechu ve tvaru řetězovky s rozponem 75 metrů. Siza spojil rozporuplné motivy západního peristylu římského fóra a orientální nomádský baldachýn. Kolosální měřítko střechy portugalského pavilonu ve výsledku připomíná prožitek z nádvoří Utzonova kuvajtského parlamentu (1982) a navazuje na Corbusierovu Budovu shromáždění v Čandigáru (1961) nebo Niemeyerův Palác úsvitu v Brasilii (1959).
(úryvek z Framptonovy monografie Álvaro Sizy)
Světová výstava Expo '98 V Lisabonu byla velkým úspěchem. Portugalci se poučili od svých předchůdců a naplánovali pro většinu z výstavních staveb nové využití. Atraktivní poloha výstaviště na nábřeží se stala potenciálem pro budoucí rekreační využití. Návrhem Národního pavilonu byl pověřen Álvaro Siza, který požádal Souto de Mouru ke spolupráci na interiérech. Já jsem byl přizván k návrhu vzrušujícího vstupního baldachýnu. Ideou bylo vytvořit před pavilonem krytý prostor, který by sloužil jako náměstí a shromažďovací prostor. Tedy ne slavnostní místo pro VIP, ale prostor pro širokou veřejnost. Nejdříve jsem se poohlížel po high-tech řešeních využívajících stožáry, lana a lehké kovové střehy, ale brzy jsem toto uvažování opustil, poněvadž se nehodila k místnímu klimatu a především k charakteru Sizova díla. Namísto toho jsme se rozhodli pro železobeton a jednoduchou zavěšenou formu. Střešní závěs však neměl být jen tak ledajakým, ale měl mít v sobě obsažený dotek světla a měl upomínat na látku stínící slunci. A to i přesto, že je beton těžký a ve výsledku bude střecha vážit tisíce tun. Pokud by popřela forma baldachýnu svou hmotu, může pak zjevit světlost? Střechu jsem na obou koncích seříznul, abych popřel spojení železobetonu s podporami. Lana probíhající střechou přenášejí její hmotnost a překlenují prázdno na koncích baldachýnu u podpor. Světelný efekt způsobuje popření vnímání masy betonu a střecha působí spíše textilním dojmem. Střecha nad náměstím se vznáší jako nějaká vesmírná loď - na 80 metrů rozpětí má střecha tloušťku 15 centimetrů. Nemožné se stalo skutečným - není to pták, kdo létá, ale vzduch umožnil střetnutí.
(Cecil Balmond, a+u November 2006 - Special Issue)