Galerie Jamese Simona

James Simon Galerie

Galerie Jamese Simona
Spolupráce:Martin Reichert, Alexander Schwarz
Adresa: Eiserne Brücke, Berlín, Německo
Investor:Stiftung Preußischer Kulturbesitz represented by Bundesamt für Bauwesen und Raumordnung
Projekt:1999-2007
Realizace:2009 - 13.7.2019
Užitná plocha:10900 m2
Náklady:134 000 000 Euro


Krajinný architekt: Levin Monsigny Landschaftsarchitekten

Kontrola projektu: Ernst & Young Real Estate GmbH
Na berlínském Muzejním ostrově byla dnes slavnostně otevřena Galerie Jamese Simona. Nevšední stavba podle návrhu světoznámého britského architekta Davida Chipperfielda se má pro návštěvníky stát vstupním bodem do většiny místních muzeí, která patří k nejnavštěvovanějším v Německu. Projekt, na němž se pracovalo deset let, přišel na 134 milionů eur (3,4 miliardy Kč).

Kancléřka Angela Merkelové ve slavnostním projevu prohlásila, že muzea jako místa vzdělávání a předávání znalostí slouží k uvědomění si minulosti při vytváření lepší budoucnosti. Dodala, že početné exponáty různých kultur jsou dokladem toho, že lidstvo má vzájemně mnohem více společného než odlišného.

"Galerie Jamese Simona je více než jen branou k berlínskému Muzejnímu ostrovu, mnohem více než jen nutně potřebnou servisní budovou," je přesvědčen Hermann Parzinger, ředitel nadace, pod kterou muzea na ostrově spadají. Novostavba je prvním podobným přírůstkem na Muzejním ostrově od roku 1930 a podle Parzingera tvoří protiklad k pětici historických staveb, které jsou na seznamu světového kulturního dědictví UNESCO.

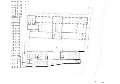
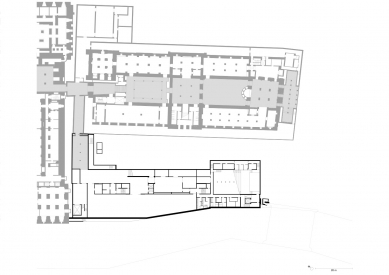
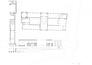
Místy minimalisticky působící budova pojmenovaná po jednom z největších mecenášů berlínských muzeí bude plnit hned několik funkcí. Pro velkou část návštěvníků Muzejního ostrova bude hlavní vstupní budovou, kde si koupí lístky a půjčí audioprůvodce, než se odtud přímou cestou vydají do Pergamonského či Nového muzea. Se všemi zbylými kulturními stánky s výjimkou jednoho novou galerii do budoucna propojí podzemní promenáda, kterou budou lemovat mimo jiné interaktivní obrazovky s informacemi o ostrově a muzeích.

Vedle této "uvítací" funkce bude Galerie Jamese Simona, jíž dominuje široké hlavní schodiště a bílá kolonáda připomínající antické památky, plnit i roli výstaviště, a to díky 650 metrů čtverečních velkému prostoru prakticky na úrovni řeky, který je určen pro přechodné expozice. Místnost asi pro 300 lidí zase dává možnost organizovat přednášky nebo konference, restaurace s kavárnou a rozsáhlou terasou pak možnost odpočinku. Chybět nebude ani obchod se suvenýry a literaturou.

Integrovat do budovy - kterou odborníci přijímají pozitivně, o níž ale přesto část Berlíňanů mluví jako o nejdražší šatně světa - všechny potřebné funkce bylo pro architekta Chipperfielda poměrně složitým oříškem, jak říká. Tím druhým bylo zaplnit stavbou zvláštní mezeru na ostrově a pokusit se ji propojit s ostatními muzei. "Všechna muzea mají zvláštní vchody. Vlastně je to taková zvláštní skupina budov, která není urbanisticky dobře spojena," říká. Pro vstup do některých muzeí je dokonce potřeba ostrov nejprve opustit, dodává.

Právě příjem a orientaci zahraničních návštěvníků by podle něj nová galerie o celkové ploše 10 900 metrů čtverečních měla výrazně usnadnit. Zároveň by ale i pro obyvatele německé metropole měla být důvodem, proč do muzeí, která znají od dětství, díky novému prostoru pro přechodné výstavy zajít jednou za čas znovu.

Veřejnosti bude Galerie Jamese Simona přístupná od soboty 13. července 2019.
ČTK
0 komentářů
přidat komentář

Více staveb od David Chipperfield