Rodinný dům v Grabs

Rodinný dům v Grabs
Spoluautor: Gody Kühnis
Adresa: Hasenbüntstrasse, Grabs, Švýcarsko
Realizace:1995


Konstrukční inženýr: Kurt Gabathuler
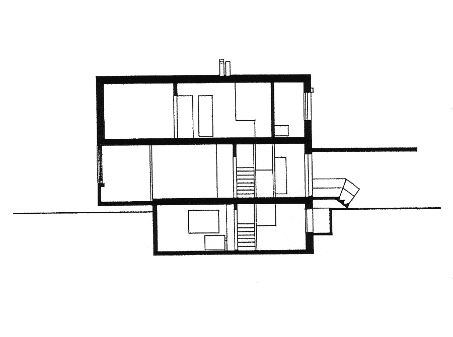
V době, kdy jsem plánoval tento dům, tak měl stát osamocený, na louce daleko od vesnice. Měl jsem na vybranou. Měl bych vytvořit dům se zahradou a jeho vlastními pevnými hranicemi? Nebo mám udělat pouze část – dům, který by měl všechny tyto věci obsaženy v sobě? Rozhodl jsem se vybrat ten druhý. Dům je kostka, která zabírá střed pozemku. Nemá žádné hranice. Z vnitřku se vám otevírá výhled do zahrady. Interiér je přesto soukromý, jeho okna jsou odsazena za terasu a stíněny posuvnými okenicemi. Geometrie kostky domu není přesná: dva rohy nejsou dokonale do pravého úhlu. Tomu také odpovídá, že terasa podél svých dvou stran nemá stejnou šířku. Terasu tvoří konzolovité rozšíření stropu ve sklepě. Třebaže je terasa od země zvednutá jen o několik centimetrů, tak vznikl dostatek místa, aby se louka mohla protáhnout pod dům a připoutat se k němu. Úhlopříčně naproti terase je parkovací stání. Dům leží v mírné prohlubni pod úrovní příjezdové cesty a já jsem si myslel, že bude zajímavé vytvořit vybíhající přístřešek, který by tento pokles zdůraznil. Přístřešek má stejně velký význam jako ostatní části domu. Prostor pod ním společně s prostorem pod terasou vtahují okolí do všech těchto částí domu, zatahuje dovnitř s téměř magnetickou silou. Lidé, kteří zde žijí, měli předtím pronajatý jeden z bytů v Trübbachu. Ten člověk, stavitel, chtěl mít svůj vlastní dům z betonu. S materiálem bylo zacházeno odpovídajícím způsobem. Odlit do loďařské překližky působí hladce, skoro vyžehleně. Nemohu říct, že jsem zde beton vybral čistě pro jeho vizuální kvality. Potřeboval jsem ho také pro jeho konstrukční možnosti. Všechno je zde z betonu – vnější nosné stěny, vystupující přístřešek, konzolovitá terasa, plochá střecha. Jediná možná konstrukce byla z betonu. Forma a materiál se vzájemně zcela potřebují.
Peter Märkli
12 komentářů
přidat komentář
Předmět
Autor
Datum
???
Kristina
20.11.08 07:04
hmm
Thierry
20.11.08 02:30
odp
ivo herman
21.11.08 03:41
hmm
Thierry
21.11.08 08:28
zobrazit všechny komentáře

Více staveb od Peter Märkli