Dům A

Casa A

Dům A
Spolupráce:Rui Forte
Adresa: Rua de Barros, Lomar e Arcos, Braga, Portugalsko
Realizace:2024
Užitná plocha:550 m2


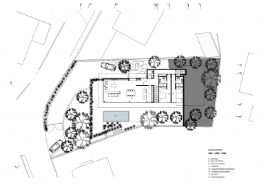
Pozemek ve čtvrti Barros na jižním předměstí Bragy není snadno přístupný. Je plný strmých svahů. Proměnlivá topografie jako by vzdorovala gravitaci. Na východní straně pozemku vyrůstá mohutná kamenná zeď. Na západě vymezuje hranici pozemku křížení několika ulic. Prázdné místo volalo po zaplnění. Bylo jako čisté plátno čekající na tahy štětcem.
Odpovědí však byl šepot, nikoli výkřik. Místo toho, abychom si přizpůsobili svah svým potřebám, tak jsme se rozhodli danému pozemku naslouchat a vycházet z něj. Architektura domu vychází z myšlenky terasovitého uspořádání. Jednotlivé výškové úrovně nás jako schody vedou od chaosu k jasnému uspořádání. Budovu lze vnímat jako organismus volně dýchající vysoko nad terénem. Dvě jednoduché horizontální plošiny objímají svah a následně volně spočívají ve volném prostoru. Není zde žádná strnulost. Z objektu jasně vyzařuje pohyb. Dům se podobně jako rostlina hledající slunce otevírá jihozápadním směrem. Odměnou jsou nerušené výhledy do krajiny, které velkými okny prostupují do interiéru.
Použité materiál jsou decentní. Vrací se ke svým kořenům. Střechy záměrně tvoří mimikry, aby dům splynul s okolím. Opěrné zdi navazují na ulici. Postupně se snižují a prolínají s městskou strukturou. Přístup je z ulice Rua de Barros. Příjezdová rampa, která překonává šestimetrový výškový rozdíl, zároveň tvoří přechod z vnějšího světa do soukromého příbytku.
Nejde o další běžný dům. Představuje úkryt, který těží se svého umístění v prudkém svahu a nabízí daleké výhledy. Je zhmotněním myšlenky, kde se uzavřenost setkává s poezií daného místa a proměňuje strmý svah v obytnou harmonii. Je místem, které vybízí k odpočinku u bazénu pod otevřeným nebem.
L2C Arquitetura
0 komentářů
přidat komentář

Více staveb od L2C Arquitectura