Bytový dům Podbělová

Bytový dům Podbělová
Adresa: Podbělová 1103/8, Hlubočepy, Praha, Česká republika
Investor:Jiří Dolejš
Projekt:10/2022-06/2023
Realizace:04/2024-08/2025
Užitná plocha:722 m2
Zastavěná plocha:213 m2


Zahradní a sadové úpravy: Akirfas
Generální dodavatel: HOBST
Stavební dozor: Ondřej Kopřiva
Foto: Jiří Vaněk
Stavba domu s devíti nájemními byty vznikla v ulici Podbělová na Barrandově, na pozemku vily z devadesátých let, konstrukčně nevyhovující a nevhodná k rekonstrukci. Pozemek se nachází ve stabilizovaném území na rozhraní Barrandovského sídliště ze 70. let 20. století a původní individuální zástavbou rodinných domů.

Cílem návrhu bylo vytvořit dům, který přirozeně doplní okolní prostředí a měřítkem i charakterem na něj naváže. Po vyhodnocení všech možností byla záměrně zvolena uměřená forma – třípodlažní hmota s plochou střechou, přestože regulativy území umožňovaly vyšší objem. Architektonický koncept tak vychází z respektu k místu a z přesvědčení, že kvalita městského prostředí spočívá ve střídmosti, kontinuitě a řemeslné kultuře.

Dům kombinuje tradiční materiály s civilním, současným výrazem. Kompaktní půdorys oživuje materiálové a objemové členění, které mu dodává přirozenou plasticitu. Do výšky parapetu třetího podlaží je fasáda obložena světlým lícovým zdivem zakončeným jemnou římsou, nad níž pokračuje krémově bílá, vertikálně rastrovaná omítka. Plochou střechu lemuje subtilní římsa s jednostranným přesahem, zastřešující a stínící balkony na boční fasádě. Celek doplňuje kovové zábradlí s dekorem abstrahovaných květů podbělu – motivu, který dává názvu celé ulici symbolický odraz v architektuře. Barevnost v odstínech krémové, šedé a bílé podtrhuje klidný, vyrovnaný charakter domu.

Nosný systém domu tvoří cihlové a železobetonové konstrukce. Kvalita pohledového betonu v podzemním podlaží byla natolik přesvědčivá, že jsme se rozhodli ponechat jeho přirozený charakter i v interiéru – na stropech chodeb, opěrných stěnách a schodištích. Shodný materiál v interiéru i exteriéru vytváří vizuální kontinuitu a posiluje celkovou jednotu stavby.

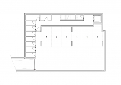
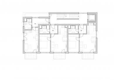
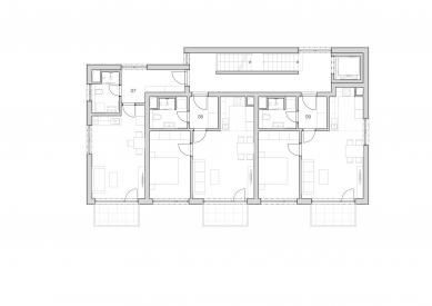
Objekt má tři nadzemní podlaží, na každém se nacházejí tři bytové jednotky – jedna garsonka (cca 31 m²) a dva byty 2+kk (cca 48 m²). Dispozice jsou řešeny s důrazem na efektivní využití prostoru a obytný komfort. V podzemním podlaží je umístěno šest parkovacích stání a sklepní kóje pro každý byt.

Významnou součástí návrhu je zeleň, která obklopuje dům ze všech stran a prostupuje i do jeho bezprostředního okolí. Travnatý povrch zasahuje částečně do parkovacích stání, čímž propojuje obytné prostředí s krajinářským rámcem pozemku. Na tradici původní zahrady navazují i tři byty v přízemí s přímým vstupem na vlastní předzahrádky a dřevěné terasy. Součástí společného prostoru je venkovní posezení pro obyvatele domu.

Projekt vznikl ve výjimečně partnerské spolupráci s investorem, který dokázal propojit své zkušenosti z oblasti nájemního bydlení s architektonickým přístupem založeným na důrazu na detail a dlouhodobou kvalitu. Aktivní účast investora v průběhu celé výstavby přispěla k mimořádně pečlivému provedení. Generální zhotovitel spolu se stavebním dozorem svým otevřeným a profesionálním přístupem podpořili dosažení úrovně, která překročila původní očekávání.
0 komentářů
přidat komentář