Byt G50

Byt G50
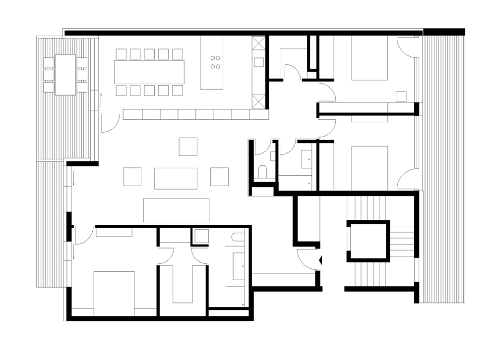
Veľkometrážny byt na najvyššom podlaží nového bytového domu v bratislavskom Starom Meste sa ponúkaným komfortom približuje bývaniu v rodinnom dome. Jeho výhodou je však centrálna poloha vrámci mesta.
Celkovú rozlohu bytu 144 m² rozširujú plochy balkónov orientované na sever do ulice a priestranná zimná záhrada, otočená do pokojného slnečného dvora s výhľadom – príjemný pobytový priestor v exteriéri, využiteľný počas celého roka.
Reprezentatívny byt je novým domovom pre starší pár. Návrh vystihujú kvalitné prírodné materiály, nadčasové riešenia a elegantné nábytky od renomovaných talianskych a rakúskych dizajnérov. Hlavný spoločenský priestor bytu – obývačku s jedálňou – oddeľuje a súčasne spája obojstranne fungujúci nábytkový prvok z bieleného dubového dreva. Ďalšou výraznou súčasťou interiéru je tmavý box, v ktorom je sústredený hygienický blok, zvonku obložený tmavým orechovým drevom s perforáciou.
Nielen návrh, ale aj kompletná dodávka a koordinácia výstavby interiéru boli zrealizované v réžii nášho ateliéru.
0 komentářů
přidat komentář

Více staveb od ARCHITEKTI mikulaj & mikulajová